

奈良文化財研究所
2023年6月20日 10:00


奈良文化財研究所
2023年6月20日 10:00
![[奈文研イベント]日高山瓦窯の発掘調査(飛鳥藤原第213次調査)現地見学会](/attachments/kZ5CxlOi2El0P1lBcBDx.jpg)
![[奈文研イベント]日高山瓦窯の発掘調査(飛鳥藤原第213次調査)現地見学会](/attachments/kZ5CxlOi2El0P1lBcBDx.jpg)
奈良文化財研究所
2023年6月19日 09:00


奈良文化財研究所
2023年6月15日 15:00


奈良文化財研究所
2023年6月15日 12:00
![[奈文研コラム]名は体を表わす?](/attachments/144zISbSIrgbPIkx43dc.jpg)
![[奈文研コラム]名は体を表わす?](/attachments/144zISbSIrgbPIkx43dc.jpg)
奈良文化財研究所
2023年6月15日 09:00


奈良文化財研究所
2023年6月5日 15:00
![[奈文研コラム]櫛の話](/attachments/fDnCw5JzAdlqtVH7qvgE.jpg)
![[奈文研コラム]櫛の話](/attachments/fDnCw5JzAdlqtVH7qvgE.jpg)
奈良文化財研究所
2023年6月1日 09:00
![[奈文研イベント]平城宮跡資料館 令和5年度 春期ミニ展示 「よみがえる西大寺金堂院」](/attachments/UmxuOV2rf1XCs06yA3Ma.jpg)
![[奈文研イベント]平城宮跡資料館 令和5年度 春期ミニ展示 「よみがえる西大寺金堂院」](/attachments/UmxuOV2rf1XCs06yA3Ma.jpg)
奈良文化財研究所
2023年5月22日 12:00


奈良文化財研究所
2023年5月18日 09:00
![[奈文研コラム]積み重ねる時間](/attachments/Jh5WS3Rp0rK71nWijSc7.jpg)
![[奈文研コラム]積み重ねる時間](/attachments/Jh5WS3Rp0rK71nWijSc7.jpg)
奈良文化財研究所
2023年5月15日 09:00
![[奈文研イベント]高松塚古墳壁画「乾拓」体験](/attachments/2U84h7UiEWcSn8ZimQrQ.jpg)
![[奈文研イベント]高松塚古墳壁画「乾拓」体験](/attachments/2U84h7UiEWcSn8ZimQrQ.jpg)
奈良文化財研究所
2023年5月15日 09:00
![[奈文研イベント]飛鳥資料館 第14回写真コンテスト「飛鳥のくらし」](/attachments/UY5M3oK05EtOrN68whhN.jpg)
![[奈文研イベント]飛鳥資料館 第14回写真コンテスト「飛鳥のくらし」](/attachments/UY5M3oK05EtOrN68whhN.jpg)
奈良文化財研究所
2023年5月11日 09:00
![[奈文研イベント] 奈良文化財研究所都城発掘調査部創設60周年記念 奈良文化財研究所 第128回公開講演会「よみがえる西大寺金堂院」(聴講無料)のご案内](/attachments/EEiZ1Zes5pE2lK4sMHBm.jpg)
![[奈文研イベント] 奈良文化財研究所都城発掘調査部創設60周年記念 奈良文化財研究所 第128回公開講演会「よみがえる西大寺金堂院」(聴講無料)のご案内](/attachments/EEiZ1Zes5pE2lK4sMHBm.jpg)
奈良文化財研究所
2023年5月1日 12:00
![[奈文研コラム]考古学者の道具箱](/attachments/tv6W06pk8uBwuzV2V4MO.png)
![[奈文研コラム]考古学者の道具箱](/attachments/tv6W06pk8uBwuzV2V4MO.png)
奈良文化財研究所
2023年5月1日 09:00


奈良文化財研究所
2023年5月1日 09:00


奈良文化財研究所
2023年4月27日 09:00


奈良文化財研究所
2023年4月19日 14:00


奈良文化財研究所
2023年4月18日 10:00


奈良文化財研究所
2023年4月18日 10:00


奈良文化財研究所
2023年4月17日 13:00
![[奈文研コラム]遊牧民の生活痕跡](/attachments/AonKFf5msHBTcqWpJSL3.jpg)
![[奈文研コラム]遊牧民の生活痕跡](/attachments/AonKFf5msHBTcqWpJSL3.jpg)
奈良文化財研究所
2023年4月17日 09:00


奈良文化財研究所
2023年4月3日 09:00
![[奈文研コラム]地形と道路にみる西大寺の名残](/attachments/axkSQBBN0l79s1HwavW3.jpg)
![[奈文研コラム]地形と道路にみる西大寺の名残](/attachments/axkSQBBN0l79s1HwavW3.jpg)
奈良文化財研究所
2023年4月3日 09:00
![[文化財総覧WebGIS]法務省登記所備付地図データを追加](/attachments/Z1ZcPSncNZTaQ64CpjyF.jpg)
![[文化財総覧WebGIS]法務省登記所備付地図データを追加](/attachments/Z1ZcPSncNZTaQ64CpjyF.jpg)
奈良文化財研究所
2023年3月30日 14:30


奈良文化財研究所
2023年3月30日 09:00
![[プレスリリース]平城宮跡歴史公園が開園5周年を迎えました!「開園 5周年記念特別展よろしく都邑を建つべし-飛鳥・藤原・平城の宮都」を開催します](/attachments/Usv3A9X9yxcBm8GDtLFW.jpg)
![[プレスリリース]平城宮跡歴史公園が開園5周年を迎えました!「開園 5周年記念特別展よろしく都邑を建つべし-飛鳥・藤原・平城の宮都」を開催します](/attachments/Usv3A9X9yxcBm8GDtLFW.jpg)
奈良文化財研究所
2023年3月23日 09:00


奈良文化財研究所
2023年3月22日 09:00
![[奈文研コラム]古い建物、「ぐるぐる」](/attachments/Y8OLgCfcXbJoUqvsiffd.jpg)
![[奈文研コラム]古い建物、「ぐるぐる」](/attachments/Y8OLgCfcXbJoUqvsiffd.jpg)
奈良文化財研究所
2023年3月15日 09:00
![[プレスリリース]市民参加型 筆順情報取得ウェブアプリケーション 「ナゾルクン」についてのお知らせ](/attachments/27iOp6ywFXF6fCnVRucS.jpg)
![[プレスリリース]市民参加型 筆順情報取得ウェブアプリケーション 「ナゾルクン」についてのお知らせ](/attachments/27iOp6ywFXF6fCnVRucS.jpg)
奈良文化財研究所
2023年3月15日 09:00


奈良文化財研究所
2023年3月15日 09:00
![[奈文研コラム]ところ変われば箕 (み)も変わる? カンボジアの発掘道具](/attachments/bwg8r4mgZmJdaCZQBXGJ.jpg)
![[奈文研コラム]ところ変われば箕 (み)も変わる? カンボジアの発掘道具](/attachments/bwg8r4mgZmJdaCZQBXGJ.jpg)
奈良文化財研究所
2023年3月6日 09:00


奈良文化財研究所
2023年3月2日 14:00


奈良文化財研究所
2023年2月24日 12:00


奈良文化財研究所
2023年2月15日 11:00
![[奈文研コラム]キトラ天文図の金箔をどのように丸形にしたか?](/attachments/UwVyFqRf4zXEcD6Bk1Te.jpg)
![[奈文研コラム]キトラ天文図の金箔をどのように丸形にしたか?](/attachments/UwVyFqRf4zXEcD6Bk1Te.jpg)
奈良文化財研究所
2023年2月15日 09:00


奈良文化財研究所
2023年2月13日 13:00


奈良文化財研究所
2023年2月8日 09:00


奈良文化財研究所
2023年2月1日 15:30
![[奈文研コラム]面を取り戻す](/attachments/68dUwNTfwJ0MT0inWiyA.jpg)
![[奈文研コラム]面を取り戻す](/attachments/68dUwNTfwJ0MT0inWiyA.jpg)
奈良文化財研究所
2023年2月1日 09:00


奈良文化財研究所
2023年1月30日 09:00
![[奈文研コラム]達磨さんのおはなし](/attachments/Fg3VzSr18diZso5zX7lv.jpg)
![[奈文研コラム]達磨さんのおはなし](/attachments/Fg3VzSr18diZso5zX7lv.jpg)
奈良文化財研究所
2023年1月27日 09:00
![[プレスリリース]令和4年度 飛鳥資料館冬期企画展 「飛鳥の考古学2022」 展示趣旨・構成](/attachments/UQ7J8vnlHsISq317xPxF.jpg)
![[プレスリリース]令和4年度 飛鳥資料館冬期企画展 「飛鳥の考古学2022」 展示趣旨・構成](/attachments/UQ7J8vnlHsISq317xPxF.jpg)
奈良文化財研究所
2023年1月23日 09:00
![[奈文研イベント]平城京左京三条一坊二坪の発掘調査(平城第650次調査)現地見学会](/attachments/kZ5CxlOi2El0P1lBcBDx.jpg)
![[奈文研イベント]平城京左京三条一坊二坪の発掘調査(平城第650次調査)現地見学会](/attachments/kZ5CxlOi2El0P1lBcBDx.jpg)
奈良文化財研究所
2023年1月16日 16:00


奈良文化財研究所
2023年1月12日 09:00


奈良文化財研究所
2023年1月4日 09:00
![[奈文研コラム]ガラスの「カタヌキ」](/attachments/8q2ouAxpyCKeaoYootVK.jpg)
![[奈文研コラム]ガラスの「カタヌキ」](/attachments/8q2ouAxpyCKeaoYootVK.jpg)
奈良文化財研究所
2023年1月4日 09:00


奈良文化財研究所
2022年12月26日 09:00


奈良文化財研究所
2022年12月23日 14:00


奈良文化財研究所
2022年12月22日 12:00


奈良文化財研究所
2022年12月22日 12:00
![[奈文研イベント]飛鳥資料館冬期企画展「飛鳥の考古学2022」](/attachments/gB8w7tya1Y6T7hVe1HeK.jpg)
![[奈文研イベント]飛鳥資料館冬期企画展「飛鳥の考古学2022」](/attachments/gB8w7tya1Y6T7hVe1HeK.jpg)
奈良文化財研究所
2022年12月21日 11:00
![[奈文研コラム]ラクダとカエル](/attachments/dYwSDj90VWNPfGf2Rsoy.jpg)
![[奈文研コラム]ラクダとカエル](/attachments/dYwSDj90VWNPfGf2Rsoy.jpg)
奈良文化財研究所
2022年12月15日 09:00
![[奈文研イベント]第22回古代瓦研究会シンポジウム](/attachments/kZ5CxlOi2El0P1lBcBDx.jpg)
![[奈文研イベント]第22回古代瓦研究会シンポジウム](/attachments/kZ5CxlOi2El0P1lBcBDx.jpg)
奈良文化財研究所
2022年12月7日 16:00


奈良文化財研究所
2022年12月7日 15:30
![[奈文研コラム] 実測道具にも歴史あり](/attachments/dqKeC7ohbePI9cjBthuM.jpg)
![[奈文研コラム] 実測道具にも歴史あり](/attachments/dqKeC7ohbePI9cjBthuM.jpg)
奈良文化財研究所
2022年12月1日 09:00


奈良文化財研究所
2022年12月1日 09:00
![[奈文研コラム] 1922-1952-2022](/attachments/UHdcV37wV4QZg1G26gdW.png)
![[奈文研コラム] 1922-1952-2022](/attachments/UHdcV37wV4QZg1G26gdW.png)
奈良文化財研究所
2022年11月30日 16:00


奈良文化財研究所
2022年11月25日 09:00


奈良文化財研究所
2022年11月25日 09:00


奈良文化財研究所
2022年11月24日 12:00


奈良文化財研究所
2022年11月24日 11:00


奈良文化財研究所
2022年11月17日 09:00


奈良文化財研究所
2022年11月10日 13:40
![[プレスリリース]「倭歌」木簡の評価と展示について](/attachments/tAa28wl1TCyUEmjyc60k.jpg)
![[プレスリリース]「倭歌」木簡の評価と展示について](/attachments/tAa28wl1TCyUEmjyc60k.jpg)
奈良文化財研究所
2022年11月10日 09:00
![[奈文研イベント] 木質文化財研究会2022年度例会「木質文化財研究の歩み」](/attachments/kZ5CxlOi2El0P1lBcBDx.jpg)
![[奈文研イベント] 木質文化財研究会2022年度例会「木質文化財研究の歩み」](/attachments/kZ5CxlOi2El0P1lBcBDx.jpg)
奈良文化財研究所
2022年11月7日 13:00
![[奈文研イベント] 第26回古代官衙・集落研究集会「古代集落の構造と変遷3」(古代集落を考える3)](/attachments/kZ5CxlOi2El0P1lBcBDx.jpg)
![[奈文研イベント] 第26回古代官衙・集落研究集会「古代集落の構造と変遷3」(古代集落を考える3)](/attachments/kZ5CxlOi2El0P1lBcBDx.jpg)
奈良文化財研究所
2022年11月1日 16:10
![[奈文研コラム] どこが違う?大極門と朱雀門](/attachments/KOlZueTA8raKq7laqlhN.jpg)
![[奈文研コラム] どこが違う?大極門と朱雀門](/attachments/KOlZueTA8raKq7laqlhN.jpg)
奈良文化財研究所
2022年11月1日 09:00
![[文化財総覧WebGIS]静岡県・岐阜県のCS立体図追加および自然災害伝承碑のポップアップ表示](/attachments/LtFZGXa6nyOuu3qw4MCT.jpg)
![[文化財総覧WebGIS]静岡県・岐阜県のCS立体図追加および自然災害伝承碑のポップアップ表示](/attachments/LtFZGXa6nyOuu3qw4MCT.jpg)
奈良文化財研究所
2022年10月28日 14:00


奈良文化財研究所
2022年10月27日 11:00


奈良文化財研究所
2022年10月27日 11:00


奈良文化財研究所
2022年10月27日 11:00


奈良文化財研究所
2022年10月27日 11:00


奈良文化財研究所
2022年10月27日 11:00


奈良文化財研究所
2022年10月27日 09:00
![[プレスリリース]高松塚古墳壁画発見50周年・奈良文化財研究所創立70周年 令和4年度秋期特別展「飛鳥美人 高松塚古墳の魅力」](/attachments/QDbOauSvZdnWjNajZPcy.jpg)
![[プレスリリース]高松塚古墳壁画発見50周年・奈良文化財研究所創立70周年 令和4年度秋期特別展「飛鳥美人 高松塚古墳の魅力」](/attachments/QDbOauSvZdnWjNajZPcy.jpg)
奈良文化財研究所
2022年10月21日 09:00
![[奈文研イベント]「ひかり拓本」て何?](/attachments/iWvTBL7Qz4176WZdubEL.jpg)
![[奈文研イベント]「ひかり拓本」て何?](/attachments/iWvTBL7Qz4176WZdubEL.jpg)
奈良文化財研究所
2022年10月19日 12:00
![[プレスリリース]全国文化財情報デジタルツインプラットフォームの構築](/attachments/dzkIpkCkHps1ZoZkvLR9.jpg)
![[プレスリリース]全国文化財情報デジタルツインプラットフォームの構築](/attachments/dzkIpkCkHps1ZoZkvLR9.jpg)
奈良文化財研究所
2022年10月18日 15:00
![[奈文研コラム] 古いアルバムの中の](/attachments/8BBWvuwpFDS6OFE6aV1H.jpg)
![[奈文研コラム] 古いアルバムの中の](/attachments/8BBWvuwpFDS6OFE6aV1H.jpg)
奈良文化財研究所
2022年10月17日 09:00


奈良文化財研究所
2022年10月14日 11:00
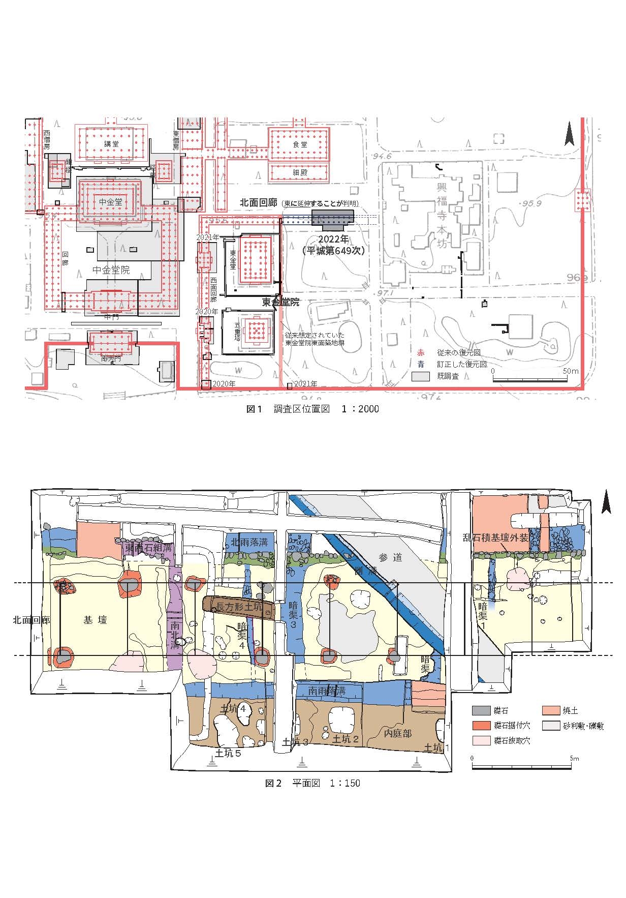
![[プレスリリース]興福寺東金堂院北面回廊の発掘調査(平城第 649 次調査)](/attachments/DfbayZ9Lqz7Vvx1tBOet.jpg)
![[プレスリリース]興福寺東金堂院北面回廊の発掘調査(平城第 649 次調査)](/attachments/DfbayZ9Lqz7Vvx1tBOet.jpg)
奈良文化財研究所
2022年10月13日 12:00
![[文化財総覧WebGIS]自然災害伝承碑の詳細表示と3D地形表示の機能公開](/attachments/QsK43mbig303sPgXuPVJ.jpg)
![[文化財総覧WebGIS]自然災害伝承碑の詳細表示と3D地形表示の機能公開](/attachments/QsK43mbig303sPgXuPVJ.jpg)
奈良文化財研究所
2022年10月7日 14:30
![[奈文研コラム] 水風呂のあとは、じっくり薬湯めぐり](/attachments/tHb1e36bL8DeAgTTkjmZ.jpg)
![[奈文研コラム] 水風呂のあとは、じっくり薬湯めぐり](/attachments/tHb1e36bL8DeAgTTkjmZ.jpg)
奈良文化財研究所
2022年10月5日 09:00
![[奈文研イベント] 奈良文化財研究所第14回東京講演会-高松塚古墳壁画を伝える-発見から石室解体、修理を経て](/attachments/sbUkkAPiEJOEikTSmCbp.jpg)
![[奈文研イベント] 奈良文化財研究所第14回東京講演会-高松塚古墳壁画を伝える-発見から石室解体、修理を経て](/attachments/sbUkkAPiEJOEikTSmCbp.jpg)
奈良文化財研究所
2022年9月30日 13:00
![[奈文研イベント]興福寺東金堂院の回廊の発掘調査(平城第649次調査)現地見学会](/attachments/kZ5CxlOi2El0P1lBcBDx.jpg)
![[奈文研イベント]興福寺東金堂院の回廊の発掘調査(平城第649次調査)現地見学会](/attachments/kZ5CxlOi2El0P1lBcBDx.jpg)
奈良文化財研究所
2022年9月29日 09:00


奈良文化財研究所
2022年9月28日 16:30
![[奈文研イベント]奈良文化財研究所70周年・平城宮跡史跡指定100周年記念特別展「のこった奇跡 のこした軌跡-未来につなぐ平城宮跡-」](/attachments/YHb99lFCBVLg2mjra8Jd.jpg)
![[奈文研イベント]奈良文化財研究所70周年・平城宮跡史跡指定100周年記念特別展「のこった奇跡 のこした軌跡-未来につなぐ平城宮跡-」](/attachments/YHb99lFCBVLg2mjra8Jd.jpg)
奈良文化財研究所
2022年9月21日 09:00
![[奈文研イベント]秋期特別展 奈良文化財研究所70周年記念・平城宮跡史跡指定100周年記念 「地下の正倉院展 -平城木簡年代記〔クロニクル〕-」](/attachments/Ju6Gke8llsrefrPTxK8N.jpg)
![[奈文研イベント]秋期特別展 奈良文化財研究所70周年記念・平城宮跡史跡指定100周年記念 「地下の正倉院展 -平城木簡年代記〔クロニクル〕-」](/attachments/Ju6Gke8llsrefrPTxK8N.jpg)
奈良文化財研究所
2022年9月16日 09:00


奈良文化財研究所
2022年9月15日 17:30
![[奈文研コラム] 似ずして是なるもの](/attachments/fKMggWZ5574GowRC5E7H.jpg)
![[奈文研コラム] 似ずして是なるもの](/attachments/fKMggWZ5574GowRC5E7H.jpg)
奈良文化財研究所
2022年9月15日 10:00
![[奈文研イベント]飛鳥資料館秋期特別展「飛鳥美人 高松塚古墳の魅力」](/attachments/cUyMol7ZxtvUSRjEt8Yb.jpg)
![[奈文研イベント]飛鳥資料館秋期特別展「飛鳥美人 高松塚古墳の魅力」](/attachments/cUyMol7ZxtvUSRjEt8Yb.jpg)
奈良文化財研究所
2022年9月15日 09:00


奈良文化財研究所
2022年9月13日 09:00


奈良文化財研究所
2022年9月13日 09:00
![[奈文研イベント]早川泰弘東京文化財研究所副所長・髙妻洋成奈良文化財研究所副所長退任記念シンポジウム 「分析化学の発展がもたらした文化財の新しい世界-色といろいろ-」](/attachments/zoOYrcStH3gK2YpI02Ec.jpg)
![[奈文研イベント]早川泰弘東京文化財研究所副所長・髙妻洋成奈良文化財研究所副所長退任記念シンポジウム 「分析化学の発展がもたらした文化財の新しい世界-色といろいろ-」](/attachments/zoOYrcStH3gK2YpI02Ec.jpg)
奈良文化財研究所
2022年9月8日 09:00
![[奈文研コラム] 夏酒](/attachments/mZG0HbKVdBce63zaAp5j.jpg)
![[奈文研コラム] 夏酒](/attachments/mZG0HbKVdBce63zaAp5j.jpg)
奈良文化財研究所
2022年9月1日 09:00


奈良文化財研究所
2022年8月29日 13:00


奈良文化財研究所
2022年8月29日 10:00
![[奈文研コラム] 平城宮跡史跡指定100周年記念ロゴ制作の裏側](/attachments/5JIFtJlJuTV3jjCkCpDR.jpg)
![[奈文研コラム] 平城宮跡史跡指定100周年記念ロゴ制作の裏側](/attachments/5JIFtJlJuTV3jjCkCpDR.jpg)
奈良文化財研究所
2022年8月15日 09:00
![[プレスリリース]藤原宮大極殿院の調査(飛鳥藤原第210 次)](/attachments/8eaCzfAW9cvRNmWpUacS.jpg)
![[プレスリリース]藤原宮大極殿院の調査(飛鳥藤原第210 次)](/attachments/8eaCzfAW9cvRNmWpUacS.jpg)
奈良文化財研究所
2022年8月8日 09:00
![[プレスリリース]『奈良文化財研究所紀要2022』の刊行について](/attachments/f6v8yed9Fs9twKTnXQrG.jpg)
![[プレスリリース]『奈良文化財研究所紀要2022』の刊行について](/attachments/f6v8yed9Fs9twKTnXQrG.jpg)
奈良文化財研究所
2022年8月3日 11:00


奈良文化財研究所
2022年8月1日 14:30


奈良文化財研究所
2022年8月1日 10:00
![[奈文研コラム]産婆の忘れられた物語](/attachments/G5ct8J4nNhBBbW6GyxlT.jpg)
![[奈文研コラム]産婆の忘れられた物語](/attachments/G5ct8J4nNhBBbW6GyxlT.jpg)
奈良文化財研究所
2022年8月1日 09:00


奈良文化財研究所
2022年7月22日 11:00
![[プレスリリース]平城宮跡資料館令和4年度夏期企画展「大地鳴動 -大地の知らせる危機と私たちの生活-」](/attachments/X3G2Z8uC4DidXIZzNqvU.jpg)
![[プレスリリース]平城宮跡資料館令和4年度夏期企画展「大地鳴動 -大地の知らせる危機と私たちの生活-」](/attachments/X3G2Z8uC4DidXIZzNqvU.jpg)
奈良文化財研究所
2022年7月21日 08:30
![[奈文研コラム]鯛で金を磨く](/attachments/UvZdyE0CAUYbf1PKRYmm.jpg)
![[奈文研コラム]鯛で金を磨く](/attachments/UvZdyE0CAUYbf1PKRYmm.jpg)
奈良文化財研究所
2022年7月15日 09:00


奈良文化財研究所
2022年7月13日 15:00


奈良文化財研究所
2022年7月13日 15:00


奈良文化財研究所
2022年7月8日 15:00


奈良文化財研究所
2022年7月8日 13:00
![[奈文研コラム] 文化財とPCR](/attachments/sEX87bdzbRHV2Oa2JTAb.jpg)
![[奈文研コラム] 文化財とPCR](/attachments/sEX87bdzbRHV2Oa2JTAb.jpg)
奈良文化財研究所
2022年7月1日 15:00


奈良文化財研究所
2022年6月29日 15:00
![[奈文研コラム] 雨天中止は何回か](/attachments/Ckj8dGEb2YToaf4RAuYf.jpg)
![[奈文研コラム] 雨天中止は何回か](/attachments/Ckj8dGEb2YToaf4RAuYf.jpg)
奈良文化財研究所
2022年6月15日 15:00
![[奈文研コラム] 「遺跡の数」から見た奈良県](/attachments/H4BnTCrBsBFTCoC7Vk3L.jpg)
![[奈文研コラム] 「遺跡の数」から見た奈良県](/attachments/H4BnTCrBsBFTCoC7Vk3L.jpg)
奈良文化財研究所
2022年6月1日 09:00


奈良文化財研究所
2022年5月31日 11:00


奈良文化財研究所
2022年5月31日 09:00


奈良文化財研究所
2022年5月24日 15:00


奈良文化財研究所
2022年5月13日 08:00


奈良文化財研究所
2022年5月12日 17:00
![[奈文研コラム] 唇に墨をぬる](/attachments/fyq4ZGd3AeQIvNgxVeej.jpg)
![[奈文研コラム] 唇に墨をぬる](/attachments/fyq4ZGd3AeQIvNgxVeej.jpg)
奈良文化財研究所
2022年4月20日 11:40