【おしゃれオフィス居抜き】北青山のヴィンテージマンション。共用部室内ともに綺麗にリノベされた最上階角部屋に空き予定出ました!
株式会社しんか(東京都渋谷区 | 代表取締役 久田 友彦)が運営するスケルトン物件に特化した物件ポータルサイト「SKELETON OFFICE TOKYO(スケルトンオフィス東京)」が新着記事を公開いたしました。

スケルトンオフィス東京では、天井が高い、コンクリート打ちっぱなし、リノベーション、倉庫風物件など”かっこよくておしゃれな物件”を中心に物件をセレクトして物件を掲載しています。
北青山にある「316青山」が募集を開始しました。現在は入居中ですが内見も随時受付をしています。
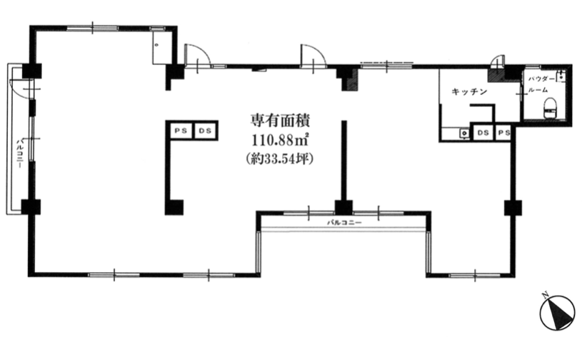
外苑前駅 徒歩4分、表参道駅 徒歩6分、110㎡のリノベーション物件です。
室内は綺麗にリノベーションされた元住居物件
▶︎Local history
おしゃれなカフェやショップが立ち並ぶ南青山3丁目交差点の至近。外苑西通りから一本入った場所に位置する。外苑前駅4分、表参道駅までは信号なしで6分と非常にアクセスが良い。
▶︎Space
2020年に室内、エントランス、共用部もおしゃれにフルリノベーションされています。今回ご紹介するのは最上階、角部屋のお部屋。天井高は3mと高く、白く塗装された天井と壁が開放感を与えてくれます。バルコニーは南西で日当たり、風通しも良好。現在はコンサル会社が入居中。他4階と5階(40㎡ほど)にも空き予定があり、同時に借りて事務所と店舗使いすることもできそうです。


▶︎writers comment
お早めのご契約で居抜き状態でのお引渡しも相談可能です。12月初旬がリミットです。ガラス張りの会議ブースや執務スペースなどいくつか施工されています。外観、共用部、室内ともにかわいく”いい感じ”です。オフィスはもちろん、天高も3mあるので撮影スタジオだったり、再開発が進むエリアなので美容サロン、セレクトショップなどの店舗にもおすすめ万能物件です。



DATA
物件名:316青山
所在地:東京都港区北青山3-1-6
最寄駅:外苑前駅 4分、表参道駅 6分
賃料:88万
管理費:5.5万
面積:110.88㎡
階層可能範囲:6階
原状回復:要相談
敷金:3ヶ月
礼金:無し
償却:1ヶ月
条件:早期契約で居抜きでの引き渡し相談可
設備:エアコン3台設置、トイレ、宅配ボックス、ブラインド、宅配ボックス、モニター付きインターフォン
築年:1973年
保険:
構造規模:鉄筋コンクリート造地上6階建
契約内容:定期借家契約2年
備考:入居中、法人登記可、光回線使用量3,300円、駐輪場空有(有料)
情報掲載社:株式会社しんか
取引様態:仲介
最終確認日:2022年11月15日
No:tyo-23-22-5-601
物件探しお手伝いします
スケルトンオフィス東京では「エスパシオ新富町」をはじめとした、かっこよくておしゃれな物件を日々掲載しております。社員が出社したくなるような、お客さんを招きたくなるような、そんな物件揃ってます。



他にも「天井が高い物件を探している」「内装をガッツリ作り込みたい」などオフィスや店舗物件を探している方は以下よりお問い合わせください。
お問い合わせはこちら
スケルトンオフィス東京
事業内容
・スケルトンオフィス物件の仲介
・オフィス家具や植物の提供
・スケルトンオフィス化のお手伝い(条件交渉、空間作り、サブリース)
| Web |
https://skeleton-office.tokyo/
| Instagram |
https://www.instagram.com/skeleton.office.tokyo/
| Facebook |
https://www.facebook.com/skeleton.office.tokyo/
| LINE |
https://page.line.me/510mmzgk?openQrModal=true
| Twitter |
https://twitter.com/skeleton_office
| Youtube |
https://www.youtube.com/channel/UCKkgakWHsZxETS_yF5VOU6g
運営会社:株式会社しんか
提供サービス
・居抜きオフィス探し、居抜きオフィス退去
・シェアオフィス企画、運用・スペース運用
・WEB会議ツール提供、企業のデジタル化、オフィス移転コンサル
・いらなくなった家具を捨てない(https://eco-kagu.space/service/)
・起業支援サポート(https://startup-company.net/)
・高級家具の再利用(https://sinca.co.jp/rental-service/)
| TEL |
03-4510-6460
| Web |
https://sinca.co.jp/






















