天井が抜けてコンクリート打ちっぱなし“スケルトン仕様”にカスタマイズ! スケルトンオフィスのシリーズ化、第一弾を発表
~ お客様に合った物件の「選択肢」を用意・提案していくプロジェクト ~
成長企業のオフィス探しを手がける株式会社しんか(東京都渋谷区 | 代表取締役 久田 友彦)が運営する『スケルトンオフィス東京 (R)』の新たな取り組みとして、2022年12月23日にスケルトンオフィスをシリーズ化するプロジェクトの第一弾を発表しました。
スケルトンオフィスのシリーズ化

この度、スケルトンオフィスのシリーズ化プロジェクトを始動いたします。
そのプロジェクト内容は、スケルトンのテイストやスペック、立地等に合わせてスケルトンオフィスのシリーズ化を図りオフィス利用、店舗利用で物件を探しているお客様に対して、皆様のカラーに合った物件の「選択肢」をご用意、ご提案するというものです。
当社では、サブリース事業として東京都心におけるターミナル駅を中心とした物件をいくつか自社で管理しております。自社管理物件や専任で管理できる物件を、オーナー様よりスケルトンの状態でお預かりをして、お客様のニーズに合わせてカスタマイズしていき、シリーズ化していきたいと考えています。
スケルトンオフィス東京(R)とは

株式会社しんかのオフィスがある神宮前で物件を探しているお客様が口を揃えて言う条件は、『天井が抜けていて、コンクリ打ちっぱなしのおしゃれな物件』です。
そこで、渋谷で18年不動産仲介をしていた代表の久田は天井が抜けていて、コンクリ剥き出しのスケルトン物件だけをセレクトした物件のポータルサイト『スケルトンオフィス東京 (R)』を2021年3月に立ち上げました。
プロジェクトの背景 スケルトンをスタンダードに

『スケルトンオフィス東京 (R)』の立ち上げの背景に加え、サイトからのお問い合わせも日々増加しており、2022年6月〜2022年12月の半年間で200件以上のお問い合わせがありました。
都内のおしゃれなカフェやアパレルショップも上を見上げてみれば天井が抜けて配管剥き出しになっています。


店舗以外にも事務所使用としてもスケルトン人気は高く、一定数の「ファン」がいて、ニーズの高まりを感じますが数ある物件のなかでスケルトン仕様の物件は全体の10%程度なのが現状です。
また、エリアや予算の関係でそのような物件を探すには限りがあります。
そこで当社では、スケルトンオフィス仕様がないなら作ってしまおうと、通常の物件をスケルトン化するお手伝いもしていきたいと考えています。
そして、スケルトンこそが新たなるオフィスの在り方になるのではないかと感じています。
第一弾 エスパシオ新富町
スケルトンオフィスのシリーズ化の第一弾として着手しているのが東京都中央区新富町にある「エスパシオ新富町」です。
2022年11月竣工の新築スケルトン物件で、この度当社が元付を担当させていただくことになりました。

所在地 東京都中央区新富1丁目5-11
交通 有楽町線『新富町』駅 徒歩2分
規模 鉄骨造一部鉄筋コンクリート造
階数 地下1階付11階建
天高 3m
面積 B1F:93.74㎡ 1F:67.24㎡ 2F:91.72m² 3F〜11F:94.07m²
設備 EV、光回線、機械警備
引渡 スケルトン ※ご相談可
▼ LOCATiON
有楽町線「新富町」駅から徒歩2分の駅近物件です。
駅周辺はビジネスホテルや単身用マンションが多く、銀座一丁目駅、八丁堀駅、東銀座駅なども徒歩圏内で、銀座エリアに近くありながら落ち着いた雰囲気の街並みです。
郵便局や中央区役所、京橋税務署、築地警察署といった公共施設も多いエリアで、電車で東京駅まで10分、新宿駅まで25分と主要駅までも抜群のアクセスです。
▼ SPAECE


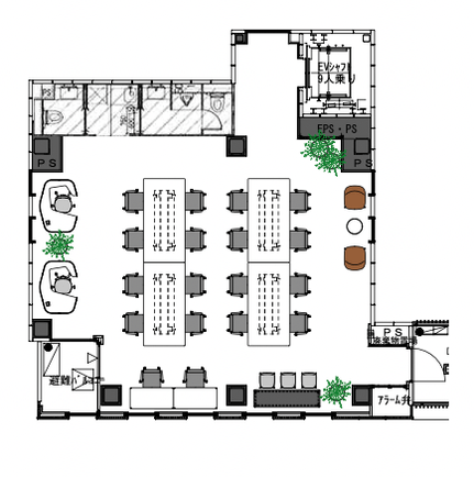
室内の広さは地下1階が20坪ほどで、他区画は約28坪となります。
4〜6人用の会議室、10名前後が利用できるフリーアドレスのデスクを置けるスペースがあります。
全フロアスケルトンとなっており、無機質ながら洗練された空間。天井は抜けていて天高3mと開放感があります。



内装プランをご提案
スケルトン物件の特徴の1つに、レイアウトの自由度が高いということがあります。
天井が抜けていて、無機質ながら解放感があり、どこを切り取っても使える空間です。
その無骨さが、いわゆる普通のオフィスと異なり、以前入居した方の個性を感じにくく、家具、植物、アートなど自分たちを表現するモノを置くだけで、唯一無二の自分たちらしさを表現することが可能です。
当社では、お客様のご要望に応じて内装プラン、オプションでお好みの家具、植物、アートのご提案をいたします。


当社のオフィスも、もともと普通の天井張りに蛍光灯、床はフロアタイルのいわゆる一般的な「普通のオフィス」だったものから自分たちでDIYでスケルトン化しました。


お客さんが来社した際には「かっこいいですね」と誉めていただくことが多く、
スケルトンオフィスでは人を招きたくなる場所、通いたくなる場所を作っていくことができます。
貸主負担での内装工事

スケルトン物件のネックとして挙げられるのが、内装費用です。
当社は、オーナー様負担で内装工事をやっていただく交渉をしており、入居者の方が自由に、理想の空間をつくっていくことができる、そんな物件をご紹介していきたいという思いがあります。
こちらの物件では天井、床、壁、水回り、空調等室内の内装や設備の工事を一部オーナー様負担で実施していただくことができ、”自分たちらしい空間”に合わせて内装の細部までこだわったオフィスづくりが可能です。



ご依頼はこちら
当社は自分たちのオフィスをDIYでスケルトン化したり、自分たちでスケルトン物件を取材して記事を書いています。
スケルトン物件の魅力を発信したいという思いがあり、みなさんのスケルトンの空間づくりのことを全面サポートします。
「エスパシオ新富町」は内見を随時受け付けております。お気軽にお問合せください。
スケルトン物件検索サイト
事業内容
・スケルトンオフィス物件の仲介
・オフィス家具や植物の提供
・スケルトンオフィス化のお手伝い(条件交渉、空間作り、サブリース)
| Web |
https://skeleton-office.tokyo/
| Instagram |
https://www.instagram.com/skeleton.office.tokyo/
| Facebook |
https://www.facebook.com/skeleton.office.tokyo/
| LINE |
https://page.line.me/510mmzgk?openQrModal=true
| Twitter |
https://twitter.com/skeleton_office
| Youtube |
https://www.youtube.com/channel/UCKkgakWHsZxETS_yF5VOU6g
運営会社:株式会社しんか
提供サービス
・居抜きオフィス探し、居抜きオフィス退去
・シェアオフィス企画、運用・スペース運用
・WEB会議ツール提供、企業のデジタル化、オフィス移転コンサル
・いらなくなった家具を捨てない(https://eco-kagu.space/service/)
・起業支援サポート(https://startup-company.net/)
・高級家具の再利用(https://sinca.co.jp/rental-service/)






















