【「オフィスのあり方見直し」に突入していると不動産屋が考える理由】渋谷区の200坪の居抜きオフィスの入居者を募集開始!

成長企業のオフィス移転をサポートしている株式会社しんか(東京都渋谷区 | 代表取締役 久田 友彦)が、渋谷区笹塚の200坪のオフィス区画を居抜きで募集を開始しました。
リモートワークの導入&働き方の定着が進み、本格的な「オフィス見直しの第3波」に突入している
コロナ禍により導入が進んでいるリモートワーク。
リモートワークという働き方が定着してきたことで、企業が一気にオフィス空間の見直しを行っています。
どのような環境のオフィスが自社にフィットするのか、多くの企業が把握し始めたためです。
都内では、オフィスのサイズ見直しを理由とした移転が加速しています。
今回ご紹介する物件のように、オフィス移転をする企業からの居抜きでの引き継ぎのご相談が増えています。
リモートワーク導入により縮小移転が目立った2020年〜2021年
「オフィス見直しの第1波」は、コロナが流行しだした2020年4月。
この時期は先の見えないコロナの感染状況で、パニック的に解約予告が出て空室率が急激に増えました。
縮小移転が90%です。2000坪借りていた方が5坪に移転(サイズダウン)するという事例もありました。
「オフィス見直しの第2波」は、コロナ第3波の2021年の年始から春頃。
この時期は第1波には縮小移転の判断をしなかった企業がこぞって解約を出し、縮小移転したことで空室がまた一気に増えました。
オフィス見直しは、2021年春以降、オフィスを借り戻したり(サイズアップ)、働き方を見直したりする中でオフィス移転が進んできました。
でもそれは大きな波ではなく、企業ごとにスピード感、温度感が異なり、まだまだ様子見で検討している企業も多かったのです。
やっぱり出社したい?2022年以降、オフィスをいままでの大きさに戻そうという動きが出てきている
現在起こっているのが「オフィス見直しの第3波」。
2022年10月頃からは通常営業のスタイルに戻す会社が増えてきました。
全面的にリモートワークを解除して、全員出社に切り替えた会社も少なくありません。
コロナ禍を経て、会社それぞれの文化とフィットする働き方、そしてどのようなオフィスが自分たちに必要なのかが分かるようになりました。
再び2023年現在、拡大も含めたオフィス空間のサイズ見直し、オフィスの機能の拡張を行う企業が急速に増えてきています。
入居したらそのまま利用できる希少な居抜きオフィス
株式会社しんかは、そのまま使える素敵な200坪の居抜きオフィス物件を引き継いで使って頂ける方を募集支援することになりました。
京王線笹塚駅徒歩3分の場所にあるオフィス区画です。
現在入居されている会社さんがリモートワークが進む中で働き方が大きく変わり、オフィスサイズ、空間のあり方を見直しする形で新しいワークスタイルができるオフィスに移転する運びとなり、現在使っている200坪のオフィスをそのまま居抜きオフィスでご利用頂ける入居者を募集する形になりました。


物件詳細
LOCATION
京王線 京王新線「笹塚駅」 から徒歩3分の駅近好立地です。笹塚駅は渋谷住所で、どこに行くにも便利で新宿から1駅、渋谷からもバスが出ていて20分で行くことができます。

SPACE
高級感漂うエレベーターホールから4階まで上がったところが今回の募集区画です。
エレベーターは3基あります。ビル周りには植栽が施されていてきちんと管理されていてハイグレードな賃貸オフィスビルです。

エントランス裏手にはサークル上の段々になったフリーススペースがあり、窓際にはバーカウンター、酸素カプセルまであるという遊び心溢れるスペースです。
酸素カプセルはなんと次の入居者の方にお譲りすることができます。


また、小上がりになった畳の休憩スペースもありお昼休憩はここでゆっくり過ごせそうです。
エントランス周りに、こうしたスペースがまとまっていて、場所によってオンとオフの切り替えがしやすいレイアウトになっています。

4階の窓から見えるのは眺めを遮るものがなく、天気がいい日は青い空が広がっています。
こんな眺めを見ていると少しうまくいかないこと、イヤなことがあっても忘れられる気がします。

会議室
会議室はエントランス付近に3つあります。
12名用、8名用、6名用と人数によって使い分けください。



執務スペースとを隔てる間仕切りはガラス仕様の間仕切りで、スタイリッシュな印象です。
ちょっとした打合せであれば、サークル上のフリースペースや、その隣にある間仕切りで作られたミーティングブースも活用していただけます。
さらに室内奥にはゆったりとした社長室があります。
こちらを個室としても来客時の応接室としても活用いただけると思います。


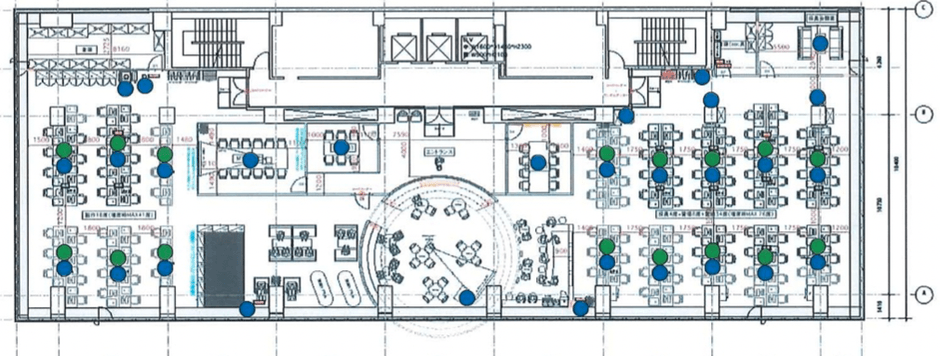
執務室
執務スペースは長いデスクが列に置かれた最大117名が利用できるレイアウト。
エントランスより左側が41席、右側に76席確保できます。
例えば左側をコーポレート部、右側を営業部隊など、部署や業種ごとに区画を分けてレイアウトしやすいかなと思います。



会議室、執務室ほかのチェア一部、冷蔵庫や複合機などは現在の入居者が持っていかれる予定ですが(チェアーに関しては相談可)酸素カプセル、デスクや什器などそのまま引き継いでいただけるものも多くございます。
什器備品に関してご興味がある場合はご相談ください。
OFFICE DATE
住所 東京都渋谷区笹塚1
アクセス 京王線京王新線「笹塚駅」 徒歩3分
用途 オフィス
構造・規模 鉄骨造 地上8階建
築年数 1993年
設備 男女別トイレ・エレベーター3基・空調
敷金・保証金 確認中
償却 確認中
礼金 確認中
更新料・再契約料 無し
契約内容 定期借家契約2年
保険その他 火災保険加入義務有り 保証会社加入必須
備考
※本物件は、現入居者からの希望により募集活動をさせていただいております。物件見学後ご希望に応じて貸主側との入居調整、条件調整等を行わせて頂きますので、予めご了承ください。
ご不明点につきましては、お気兼ねなくお問合せください。
お問合せ先
株式会社しんか
提供サービス
・居抜きオフィス探し、居抜きオフィス退去
・シェアオフィス企画、運用・スペース運用
・WEB会議ツール提供、企業のデジタル化、オフィス移転コンサル
・いらなくなった家具を引き継ぐ(https://eco-kagu.space/service/)
・起業支援サポート(https://startup-company.net/)
・高級家具の再利用(https://sinca.co.jp/rental-service/)
・スケルトンオフィス東京(https://skeleton-office.tokyo/)




























