家族の変化に合わせて空間をカスタマイズ 「幸せ住まい」を叶える仕切りのない大空間 ~様々な事業を紹介する「積水ハウス ストーリー」の 最新情報を公開~
積水ハウスの様々な事業を紹介する「積水ハウス ストーリー」の公開を開始しました。
お客様の戸建て住宅への想いや、商品開発への想いを、毎回テーマを設定してご紹介します。
第11弾として1月28日に、積水ハウスが提案する「仕切りのない大空間」を取り入れたご家族についてのストーリーを公開しました。

リビングは家族の団らんスペース以外にも様々な用途の場に
■家族構成やライフスタイルは時と共に変化 家の間取りは簡単に変えられない
進学や就職、転勤などをきっかけに、これから春にかけてはライフスタイルががらりと変わることが多いタイミング。
子どもの成長とともに勉強スペースや個室が必要になったり、社会人になって家を巣立っていき夫婦だけの生活に戻ったり…家族のライフスタイルの変化に合わせて、家の役割や必要な空間も変わっていきます。
とはいえ、間取りはなかなか簡単に変えられるものではありませんよね。
だったら、逆転の発想で、最初から柱や壁といった仕切りのない大空間のある家を選んでみるのはいかがでしょうか。
積水ハウスの調査では、「広いリビングであるほど家族が自然と集まってくる」こともわかっています(※1)。仕切りがないことで、家族の気配・つながりを感じられるメリットがあるのでしょう。

リビングの畳数が広いほど、家族が自然と集まる
(※1)リビングルームアンケート調査(2019年 n=1020)/積水ハウス 住生活研究所調べ
https://www.sekisuihouse.co.jp/kodate/lifestyle/familysuite/
コロナ禍でお家時間が増えていることから、家族それぞれが気にしないで思い思いのことができる場所づくりを考えることも重要に…。そういった面からも「広い空間の確保」は重要なのです。
■リビングが料理教室に大変身 仕切りのない大空間で用途に合わせてカスタマイズ
積水ハウスが提案するのは、家族が自由に好きなことができる仕切りのない大空間「ファミリー スイート」です。家族の成長にともなって変化する住まいへのニーズにも柔軟に対応できるほか、広い空間があることで、家族の「つながり」にも変化が。
実際に、大空間のある家に住む山口県在住のFさん一家は、夫婦と3人の女の子の5人家族。妻・Mさんは料理研究家のアシスタントを務めるかたわら、自宅で料理レッスンをしています。
「生徒さんの人数や教える料理によってLDKのレイアウトを変えています。例えばパンのレッスンの時は広い作業スペースを設けるために、ソファーやダイニングテーブルを移動して作業台を追加することも。仕切りのない広い空間だからこそ、目的に合わせて自由に変えられるので便利です。」
また、仕事柄キッチンに立つことも多いことから、料理をしながら子ども達の様子が見えることは、Mさんにとって重視なポイント。しかも、ママが料理する姿が見えることで、長女や次女が料理に興味を示してキッチンに立つこともあるそう。
広々としたリビングは外のウッドデッキとフラットにつながっていて、さらに広い空間を演出。休日には、アウトドア好きな夫・Kさんが率先して、家族でバーベキューを楽しんでいるそうです。

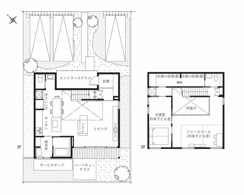
Fさんの1階の大空間リビング。家族の団らんはもちろん、お料理レッスンにもフレキシブルに対応できる大空間
さらに、2階にはあえて子ども部屋を作らず、仕切りのない大きなスペースに。現在は子どもたちの遊び場となっていますが、小学生になったら勉強スペースとしても利用できるようにと、机も用意されています。

2階のフリースペース。将来はお子さんの個室にすることも可能
「最初から壁で仕切るのでなく、大きな空間をつくって後から変えていくという考えは、僕もいいなと思いました。」 そう話すのは、夫・Kさん。将来的に、必要に応じて壁を立てて個室にできるよう天井補強を施してありますが、本棚や2段ベッドなどの家具を使ってゆるやかに空間を仕切ることも考えていると言います。
「女の子同士なので、仕切らないままかもしれないですね。どうしても部屋をほしがったらつくればいいですし。また、今後、このスペースをどう使おうかなと考えるのも楽しみですよね。」
子ども用のスペースとして使わなくなったら、セカンドリビングやホームシアターといった使い方も考えているFさんご夫婦。環境に合わせてさまざまな使い方ができる空間に、今から楽しみが広がっています。

1階に大空間リビング、2階に広々としたフリースペースを設けたFさん邸の間取り 2階のフリースペースは、本棚を置いて半個室化することも可能
ただ、柱や壁のない大空間だと、地震などの時に安全なの?と心配に思われるかもしれませんが、積水ハウスで標準的に使う梁の約10倍の強度を持つ「ダイナミックビーム」を活用することで、最大7mという空間を柱なしで実現できます。30帖を超える大空間リビングでも柱や間仕切りの無いダイナミックな空間づくりをすることができるのです。

積水ハウス オリジナル高強度梁「ダイナミックビーム」
仕切りのない大空間をつくることで、「いま」の幸せはもちろん、家族の成長や環境の変化に合わせた「これから」の幸せも考える住まいづくりをしてみませんか。
●商品情報
・ファミリー スイート
https://www.sekisuihouse.co.jp/kodate/lifestyle/familysuite/
・ファミリー スイート おうちプレミアム
https://www.sekisuihouse.co.jp/kodate/lifestyle/familysuite/plus/
























