“ワークライフバランス”のモデル都市を目指した 神奈川・湘南深沢駅前大規模開発エリアへ徒歩3分 モデルルーム「ヴェレーナ鎌倉深沢」がオープン
~8物件合同「VERENA“湘南・横浜に暮らす”キャンペーン」開催中~
大和地所レジデンス株式会社(東京都港区、代表取締役社長:下村 俊二)は、神奈川県鎌倉市常盤に当エリアでは4物件目となる「ヴェレーナ鎌倉深沢」のモデルルームがオープンしたことをお知らせいたします。
GW期間中は120件のご来場の内、約半数が鎌倉市内、30~40代が約6割という状況でした。
また、住みたい街として根強い人気を集める湘南・横浜エリアにおいて、当社では現在8物件を販売しています。昨今のライフスタイルの変化に加え、住環境・交通利便性・広さや住戸仕様等の魅力をご体感いただける「VERENA“湘南・横浜に暮らす”キャンペーン」を6月30日(木)まで開催しています。
1. 「ヴェレーナ鎌倉深沢」モデルルームオープン

望合成外観完成予想CG
■本物件の特徴
・湘南モノレール「湘南深沢」駅徒歩3分
・駅前に広がる約31haの土地区画整理事業は「SDGs共生未来都市」としてワークライフバランスのモデル都市となるエリア
・全邸南向き。永住を叶える3LDK 68m2~90m2超の多彩なプラン
■駅徒歩3分。約31haの深沢地区土地区画整理事業

約31haの深沢地区土地区画整理事業
「ヴェレーナ鎌倉深沢」は、大船~湘南江の島駅間を結ぶ「湘南モノレール」と鎌倉~藤沢間を結ぶ道路「藤沢鎌倉線」が交わるクロスポイントに位置。生活と交通の拠点である鎌倉と大船、藤沢にアクセスしやすく、湘南の海や自然が身近なバランスのとれたポジションです。
「湘南深沢」駅前に広がる深沢地区土地区画整理事業予定区域は、鎌倉市本庁舎を移転する方針が決定し、商業・住宅・公園等約31haの事業です。「ウェルネス」をテーマに、その第一歩として身体と心の健康につながり、新しい出逢いや交流を生む“ウォーカブル=歩きやすい、歩きたくなる環境創造”を目指します。『SDGs共生未来都市』として2028年度に街開きを予定しており、ワークライフバランスのモデル都市ともなりうるエリアです。
2032年ごろに開業する見込みのJR東海道線の新駅周辺地区計画と一体の街づくりにも期待が高まります。
■全邸南向き。永住を叶える3LDK 68m2~90m2超の多彩なプラン
独立性と開放感がある角地形状を活かし、全97邸を南向きに配置。
共用部にはワークスペースとラウンジ、庭とつながるパーティールームを配したオーナーズサロン(集会室)設置しました。専有部はオープンエアリビングやオープンエアスペース等、明るさと開放感を高めた3LDK 68m2~90m2超の多彩なプランをご用意。上層階の一部住戸には“プレミアム住戸”を採用しています。
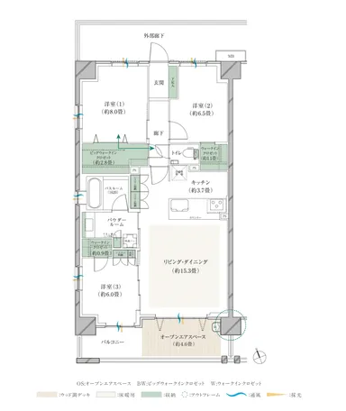
<A2os type>
3LDK+OS+BW+2W
専有面積/90.27m2
約4.6畳のオープンエアスペース
各居室にウォークインクロゼットを設置

A2osタイプ 90.27m2
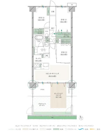
<E1OL type>
3LDK+OL+T+PG+BW+W
専有面積/76.25m2
1F住戸には専用庭付オープンエアリビングを設置
廊下側からも出し入れ可能なビッグウォークインクロゼット

E1OLタイプ 76.25m2
■物件概要
所在 : 神奈川県鎌倉市常盤字下耕地18番4の一部(地番)
交通 : 湘南モノレール「湘南深沢」駅 徒歩3分
敷地面積 : 3,806.39m2
建築延床面積: 8,111.12m2
構造・規模 : 鉄筋コンクリート造(一部鉄骨造)、地上7階建
総戸数 : 97戸[他に管理員室、オーナーズサロン(集会室)
(ワークスペース・ラウンジ・パーティールーム含む)各1戸]
間取り : 3LDK
専有面積 : 68.80m2~90.27m2
販売価格 : 未定
販売開始予定: 2022年5月下旬
竣工予定 : 2023年2月下旬
入居予定 : 2023年4月中旬
売主 : 大和地所レジデンス株式会社
設計・管理 : 株式会社長谷工コーポレーション
施工会社 : 株式会社長谷工コーポレーション
物件HP : https://www.daiwa-r.co.jp/sp/kamakura-fukasawa

エントランス完成予想CG

パーティールーム完成予想CG
■現地案内図

現地案内図
2. 「VERENA“湘南・横浜に暮らす”キャンペーン」概要

“湘南・横浜に暮らす”キャンペーン
住みたい街として常に熱い注目を浴びる湘南・横浜エリア。豊かな自然と交通アクセスに恵まれていることに加え、昨今のライフスタイルの変化や都内に比べて住戸面積が広く、価格的にも手頃な傾向にあることも選ばれる理由のようで、2021年には神奈川県への転入超過数が全国トップとなりました。

東京都の70m2以上住戸割合グラフ

横浜市+湘南エリアの70m2以上住戸割合グラフ

主要都道府県別転入超過数グラフ
データ資料:MRC・2022年3月号 作成2022.3.18 有限会社エム・アール・シー
自宅で過ごす時間が増えた今、住まいにはより高い快適性が求められています。
「部屋数が欲しい:24%」「広いリビングが欲しい:23%」「収納が欲しい:20%」
(出典:「住宅購入・建築検討者」調査(2021年12月)リクルート調べ)
当社では、2021年度グッドデザイン賞を受賞した「オープンエアリビングバルコニー」他、ゆとりと個性あふれる住空間を取り揃えた物件を神奈川県内で8物件販売しています。この8物件を対象に6月末まで「VERENA“湘南・横浜に暮らす”キャンペーン」を開催しています。
今後も家族が豊かで過ごしやすい住空間を充実させ、幅広い世代からご評価いただけるような住まいづくりを行ってまいります。
■キャンペーン概要
キャンペーン名:VERENA“湘南・横浜に暮らす”キャンペーン
期間 :2022年4月29日(金・祝)~6月30日(木)
内容 :期間中、対象物件をご契約された方へ
「神奈川県カタログギフト」プレゼント
<対象物件>
・ヴェレーナ鎌倉深沢(神奈川県鎌倉市/全97戸)
https://www.daiwa-r.co.jp/sp/kamakura-fukasawa/
・ヴェレーナシティ藤沢(神奈川県藤沢市/全102戸)
https://www.daiwa-r.co.jp/sp/vc-fujisawa/
・ヴェレーナグラン湘南藤沢(神奈川県藤沢市/全33戸)
https://www.daiwa-r.co.jp/sp/vgr-shonan-fujisawa/
・ヴェレーナブリエ湘南藤沢(神奈川県藤沢市/全46戸)
https://www.daiwa-r.co.jp/sp/vb-shonan-fujisawa/
・ヴェレーナグラン茅ヶ崎東海岸(神奈川県茅ヶ崎市/全111戸)
https://www.daiwa-r.co.jp/sp/chigasaki111/
・ヴェレーナシティ パレ・ド・マジェステ(神奈川県横浜市港南区/全193戸)
https://www.daiwa-r.co.jp/sp/majeste/
・ヴェレーナブリエ横浜生麦(神奈川県横浜市鶴見区/全54戸)
https://www.daiwa-r.co.jp/sp/namamugi/
・プレディア横濱山手パークヴィラ(神奈川県横浜市中区/全75戸)
https://www.predear.com/pj/yokohamayamate/
<キャンペーンサイト>























