星野リゾート 界 「バリアレス」への取り組み開始 界で温泉孝行しませんか? 期間:2019年5月13日〜通年
星野リゾートが全国に展開する温泉旅館ブランド「界」では、足元に不安のある方やご年配の方をご家族にもつ方が利用する際に感じる、負担や障害(バリア)を少しでも軽減(レス)できるよう、「バリアレス」という取り組みを開始します。
現状、界の各施設には段差がありますが、まずは、事前に館内の段差や設備に関する情報をWEBで公開し、宿泊をサポートする備品を用意することから始めます。これまで、足元に不安のある方やご年配のご家族を連れての温泉旅行を諦めていたご家族にも、この取り組みをきっかけに、ぜひ、界で「温泉孝行」を検討して欲しいと考えています。
バリアレスへの取り組みは首都圏からもアクセスが良く、湯量豊富な伊東温泉に位置する「星野リゾート 界 伊東」で2019年5月13日より開始し、全国で展開する全ての界で、2023年までに開始する予定です。

取り組みの背景
現在、国内の全人口の中で、65歳以上の高齢者の割合が21%を超える超高齢化社会を迎えており、2025年には3人に1人が高齢者になると見込まれています。また、医療や科学技術の発展により、平均寿命も延びており、定年退職後の過ごし方が注目されています。中でも、旅行を趣味にしたいという意向は高く、国内の旅行先としても温泉は特に好まれる傾向があります。一方、70代半ばになると足腰の運動機能の衰えにより、一人での入浴が困難になり、温泉だけでなく観光を控えてしまう傾向があると言われています。(参照:下グラフ)

家族揃っての温泉旅行を諦めて欲しくない想いから始動、「バリアレス」で温泉孝行を応援
温泉旅館ブランド「界」では、足元に不安のある方やご年配の方、そういった親御さんと一緒に温泉旅館に行ってみたいと考えているご家族の方に、旅を諦めずに界で温泉や食事を楽しんでいただけるよう「バリアレス」という取り組みで「温泉孝行」を応援します。
これまで、ゲストからの「バリアフリーの施設ですか」という問い合わせに対して、温泉や客室内、導線上に段差があり、スロープが十分ではないため「バリアフリー」の宿としての受け入れが難しい状況でした。
今後、進む高齢化社会を見据え、どういった受け入れができるかを検討し、まずは、WEB上で客室の見取り図や浴槽の形状を公開し、手すりや浴槽台などの備品の貸し出しを行うことで、ご家族の「温泉孝行」を応援していきます。また、サービスを行うスタッフは事前に研修を行い、実際に足腰に不安のある方やそのご家族に、心から温泉旅館を満喫してもらえるようなサポートができるようソフト面での準備も進めています。

今後の展開
首都圏からアクセスも良く、一年中温暖な伊東温泉にある、界 伊東で取り組みを開始します。客室でも温泉を楽しむことができ、日本庭園や広々とした大浴場を備えています。実際のゲストの様子や声を反映させながら、全国の界に2023年までに導入し、ゲストの色んな所へ行ってみたいというニーズにも応えたいと考えています。
スタッフの想い:
星野リゾート 界 伊東 総支配人 岡本昌裕
バリアレスの取り組みは、館内にバリアがある中で、お客様のストレスを極力少なくし、温泉旅館で過ごす、ご家族の時間を心から楽しんでいただくために、何が必要でどんなことができるだろうと考えるところからスタートしました。源泉を館内いたるところでご利用いただける界 伊東で、ご家族皆様の思い出に残る温泉滞在をサポートしたいと存じます。

監修:
温泉エッセイスト VISIT JAPAN大使 跡見学園女子大学兼任講師 山崎まゆみ氏
今回、バリアフリー温泉関連の書籍を複数著作し、国内各地のバリアフリー温泉を良く知る温泉エッセイストの山崎まゆみ氏に監修を依頼しています。宿泊するにあたり必要な公開情報やサポート備品などを助言いただき、本プロジェクトを一緒に進めています。

<プロフィール>
世界32カ国1000カ所以上の温泉を巡り「温泉での幸せな一期一会」をテーマにメディアでレポート。新刊『さあ、バリアフリー温泉旅行に出かけよう! 準備から旅の注意点まで、知って安心の親切マニュアル 』(河出書房新社)等著書多数。内閣官房「ユニバーサルデザイン2020評価会議」等にも参画し「バリアフリー温泉」の推進に尽力。
<メッセージ>
2017年暮れ、代表の星野佳路氏に「旅館にとってバリアフリーはハードルが高いらしくて、なかなか広がりません…。」と呟いたことからスタートしたのが本プロジェクトです。段差や階段があってこそ魅力的な温泉旅館。そこに情報公開と必要な備品、スタッフの心構えで受け入れていく主旨です。日本人にとって、温泉旅館こそが最も寛げる場として、これから本取り組みが社会に必要とされていくことを信じ、大きな波となり、広がっていくことを切に願います。
界 伊東で3つの取り組みを開始
2018年12月にリニューアルし、三世代でも家族揃って宿泊が可能な界 伊東の「特別和室」を中心に、温泉旅館を楽しんでいただけるよう、下記の3つの取り組みを行います。



取り組み1 客室での滞在や温泉入浴をサポートする備品を用意
界 伊東の特別和室では内風呂での入浴や移動をサポートする備品を準備しています。非日常感が保たれるよう、客室のデザインになじむ、木目やブラウン系などの備品を選んでいます。
■特別和室用 サポート備品:
・手すり(玄関、寝台、トイレ、内風呂)
・室内用杖
・滑り止め付き足袋
・杖カバー
・シャワーチェア
・浴槽台
*その他に館内移動用の車椅子、大浴場にはシャワーチェアを用意しています
■料金:無料
■申し込み:5日前までに電話予約(0570-073-011 界予約センター)


取り組み2 スタッフの研修
2019年3月、界 伊東のサービススタッフ30名を対象に研修を実施しました。在宅マッサージを主な事業として展開する「株式会社フレアス」(本社:東京都渋谷区)と連携し、バリアレスの心構えや、車椅子や杖を使った疑似体験、チェックインからチェックアウトまでの流れの中で必要とされるサポートのポイントを学びました。車椅子を利用したゲストへの接客経験が無いスタッフも疑似体験を経て、立った姿勢に比べ、かなり目線が低いことを知り、接客の際に心がけたいという声が上がっていました。また、客室に設置するサポート備品を使用し、どの位置に配置すると使いやすく、ご家族も安心かという議論も熱心に行われました。


株式会社フレアス
在宅マッサージを主たる業務とし、全国で102拠点(2018年12月現在)を展開する企業。直接雇用で300人以上のあん摩マッサージ指圧師(国家資格者)を抱え、在宅医療の明日をサポートすることを使命とする。
取り組み3 公式サイト上での情報の開示
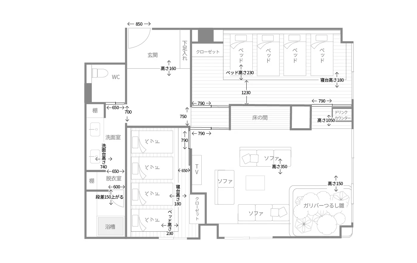
宿泊先を検討する段階で、施設の状況を把握できるよう、客室内の段差や広さを示した見取り図、貸し出し可能な備品などの情報をWEBサイトに掲載しています。
■WEBサイト掲載情報:
・客室見取り図(段差の有無、間口の広さ、ベッドの高さなど)
・客室内浴槽の形状
・貸出備品リスト
・エントランス~玄関までの段差
・客室から食事処や大浴場までの段差
・食事処内での車椅子使用の有無
・大浴場内の段差

▲客室見取り図

▲客室浴槽の形状
「バリアレス」への取り組み 詳細
■期間 :2019年5月13 日~通年
■場所 :星野リゾート 界 伊東(〒414-0016静岡県伊東市岡広町2-21)
■対象客室:特別和室
■料金 :1泊 34,000円~(2名1室利用時1名あたり、税・サービス料込、夕朝食付)
■問合せ :5日前までに電話(0570-073-011 界予約センター)
■詳細 :https://kai-ryokan.jp/features/barrierless/index.html

星野リゾート 界
星野リゾートが全国に展開する日本初の温泉旅館ブランド。日本らしさと快適性を追求した空間やサービスをご用意しています。旅の醍醐味であるご当地の魅力を表現する「ご当地(とうち)楽(がく)」のおもてなしと、滞在を通して地域の文化に触れる「ご当地部屋」が特徴。2018年7月に15施設目となる「界 仙石原」が箱根町仙石原に誕生し、2019年4月に青森県・大鰐温泉の「界 津軽」がリニューアルオープンしました。
電話:0570-073-011 (界予約センター)
























