【新着情報】広尾のデザインオフィス物件アド・ビルディング内見受付スタート!
成長企業のオフィス探しを手がける株式会社しんか(東京都渋谷区 | 代表取締役 久田 友彦)が運営するスケルトン物件に特化した物件ポータルサイト「SKELETON OFFICE TOKYO(スケルトンオフィス東京)」が、新着記事を公開いたしました。
広尾のデザインオフィス物件「アド・ビルディング」の内見受付が開始しました。
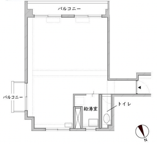
恵比寿徒歩4分、40.17㎡、賃料22.8万、築50年のオフィス物件です。

▶︎Local history
恵比寿駅から徒歩4分。明治通りを少し入ったところにある、立地抜群の物件。タクシー移動も便利そうだ。近くにはタコの滑り台がある通称タコ公園がある。



▶︎Space
現在ファッション系の事務所として利用されているこのお部屋。古い建物ながら、共用部分の廊下や階段もなんだかおしゃれに手入れされている。お部屋も天井が抜かれていて、床もコンクリ、壁は白く塗られていて清潔感がある。

▶︎writers comment
どうやらすごくいい感じの物件が出たようだと社内で盛り上がり、社員揃ってみんなお部屋見に行っちゃいました。文句なしでかわいい内装です。あと、近くに行列ができる肉まん屋さんがあります。おすすめです。

▶︎DATA
物件名:アド・ビルディング
所在地:東京都渋谷区広尾1-15-7
最寄駅:恵比寿駅徒歩4分
賃料:228,000円
管理費:3,000円
面積:40.17㎡
階層可能範囲:5階
原状回復:要確認
敷金:2ヶ月
礼金:2ヶ月
償却:
条件:
設備:エアコン、光ファイバー
築年:1972年
保険:要加入
構造規模:鉄筋コンクリート造8階建
契約内容:定期借家
備考:
情報掲載社:株式会社しんか
取引様態:仲介
最終確認日:2022年10月13日
No.TYO-23-10-83
お問合せはこちら
物件詳細
スケルトンオフィス東京
事業内容
・スケルトンオフィス物件の仲介
・オフィス家具や植物の提供
・スケルトンオフィス化のお手伝い(条件交渉、空間作り、サブリース)
| Web |
https://skeleton-office.tokyo/
| Instagram |
https://www.instagram.com/skeleton.office.tokyo/
| Facebook |
https://www.facebook.com/skeleton.office.tokyo/
| LINE |
https://page.line.me/510mmzgk?openQrModal=true
| Twitter |
https://twitter.com/skeleton_office
| Youtube |
https://www.youtube.com/channel/UCKkgakWHsZxETS_yF5VOU6g
運営会社:株式会社しんか
提供サービス
・居抜きオフィス探し、居抜きオフィス退去
・シェアオフィス企画、運用・スペース運用
・WEB会議ツール提供、家具の再利用、企業のデジタル化、オフィス移転コンサル
・いらなくなった家具を捨てない(https://eco-kagu.space/service/)
・起業支援サポート(https://startup-company.net/)
・高級家具の再利用(https://sinca.co.jp/rental-service/)
| TEL |
03-4510-6460
| Web |
https://sinca.co.jp/





























