オフィスは経営課題を克服するための有効なツール 業績向上のカギとなるコミュニケーションを活性化し、 創造性を発揮させるエコな新しいオフィスをミダスが提案します!
企業動向
2013年2月14日 14:30 株式会社ミダス(本社:東京都中央区、代表取締役社長:奥村 元弘、URL: http://www.midasjapan.com 、以下:ミダス)は、この度、業務効率と生産性の向上を重視した自社のオフィスリニューアルを実施し、2013年1月7日からリニューアルしたオフィスで業務を開始致しました。
◆オフィスリニューアルの経緯
昨今、オフィスのあり方や、ワークスタイルが大きく変わってきました。そのきっかけとして、iPadやiPhoneといった端末の普及によるITのインフラが整備され、空間の制約を受けずにオフィス以外で作業が出来るようになったことがあげられます。
しかし、創造性を発揮するには社員同士が交流し合うことが重要であり、その交流する大切な『場』がオフィスにあります。今後、増々オフィス環境の重要性を認識する必要があります。
そこで今回、ミダスは自社のオフィスリニューアルを行うにあたり、今日のワークスタイルに合った『場づくり』を、これまでの執務エリア中心のオフィスから、出会いとコラボレーションを中心とする日本初のオフィスのカタチを目指し開始致しました。新しいオフィスには社員の生産性向上を促すレイアウトや、デザイナーの創造性を刺激する様々な仕掛けを行っております。
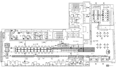
~オフィスコンセプト~
http://www.atpress.ne.jp/releases/33412/1_1.jpg
◆『個をつなぐオフィス』で生産性向上!
これからのオフィスに求められる中心的な機能は個人集中型(占有)からチーム内での打ち合わせや他部署とのコラボミーティング(共有)が重要になってきます。
リニューアル前のオフィスでは出来なかったことが、今回リニューアルを行ったことで可能になります。
◆『新発想のオフィス』で新しいアイディアを発想!
今までのワークスタイルはリレー型で部署ごとに席が分かれておりましたが、これからのワークスタイルはスクラム型で取り組むことによる「付加価値」を上げることが求められます。フリーアドレス制を導入する事で、その付加価値を実現します。
◆『開かれたオフィス』でコミュニケーションの活性化!
多様なコラボレーションを可能にすることで、オフィスでのコミュニケーションを活性化し業務効率が向上します。
http://www.atpress.ne.jp/releases/33412/2_2.jpg
(1) フリーアドレス
フリーアドレスにすることで、カジュアルな情報交換を促進し、一体感を醸成します。
(2) ノマドエリア
ノマドエリアではデスクの位置を自由に作り替えることが可能。チーム同士での打ち合せや個人での集中作業ができるよう可変的な空間を実現し、創造性を発揮します。
(3) パブリックエリア
パブリックエリアでは社外との情報交換をする場として、レセプションやセミナーも行える仕掛けがあり、間接照明で雰囲気を変える演出が可能です。
(4) 会議室
フォーマルな会議室として、意思決定の確認の場として活用します。
◆『エコなオフィス』で環境問題の意識を高める!
ミダスは「日本の山を再生したい」という環境問題に対しての強い意識から今回のオフィスリニューアルでは、多くの杉の間伐材を使用しております。使用箇所はデスクやキャビネット、床材や天井に多く使用しておりますので、オフィス全体には杉の香りが漂い、働く人へのリラックス効果を生みます。
また、照明は全てLEDに変えたことで、計算上13%のコスト削減を見込めます。
◆ビフォー・アフター画像
<ビフォー>
http://www.atpress.ne.jp/releases/33412/3_3.jpg
<アフター>
http://www.atpress.ne.jp/releases/33412/4_4.jpg
◆オフィスデザインの実績(一部抜粋)
「American Airlines,Inc.」「DHL Supply chain Ltd(Japan)」「Virgin Atlantic Airways」「株式会社ピアソン桐原」「株式会社博報堂コンサルティング」「MTV Networks Japan K.K」「Hurley Japan」
【会社概要】
社名 : 株式会社ミダス
URL : http://www.midasjapan.com/
所在地 : 東京都中央区築地3-9-9 ラウンドクロス築地
海外拠点 : 香港
事業内容 : オフィスコンサルティング業務、内装設計業務、
設備設計業務、プロジェクトマネジメント業務
内装工事、IT工事、家具調達代行業務、
ビル外装内装デザイン業務
設立 : 1977年8月1日
資本金 : 4千万円
代表者 : 代表取締役社長 奥村 元弘
Facebook URL : http://www.facebook.com/midas.company.ltd
◆オフィスリニューアルの経緯
昨今、オフィスのあり方や、ワークスタイルが大きく変わってきました。そのきっかけとして、iPadやiPhoneといった端末の普及によるITのインフラが整備され、空間の制約を受けずにオフィス以外で作業が出来るようになったことがあげられます。
しかし、創造性を発揮するには社員同士が交流し合うことが重要であり、その交流する大切な『場』がオフィスにあります。今後、増々オフィス環境の重要性を認識する必要があります。
そこで今回、ミダスは自社のオフィスリニューアルを行うにあたり、今日のワークスタイルに合った『場づくり』を、これまでの執務エリア中心のオフィスから、出会いとコラボレーションを中心とする日本初のオフィスのカタチを目指し開始致しました。新しいオフィスには社員の生産性向上を促すレイアウトや、デザイナーの創造性を刺激する様々な仕掛けを行っております。
~オフィスコンセプト~
http://www.atpress.ne.jp/releases/33412/1_1.jpg
◆『個をつなぐオフィス』で生産性向上!
これからのオフィスに求められる中心的な機能は個人集中型(占有)からチーム内での打ち合わせや他部署とのコラボミーティング(共有)が重要になってきます。
リニューアル前のオフィスでは出来なかったことが、今回リニューアルを行ったことで可能になります。
◆『新発想のオフィス』で新しいアイディアを発想!
今までのワークスタイルはリレー型で部署ごとに席が分かれておりましたが、これからのワークスタイルはスクラム型で取り組むことによる「付加価値」を上げることが求められます。フリーアドレス制を導入する事で、その付加価値を実現します。
◆『開かれたオフィス』でコミュニケーションの活性化!
多様なコラボレーションを可能にすることで、オフィスでのコミュニケーションを活性化し業務効率が向上します。
http://www.atpress.ne.jp/releases/33412/2_2.jpg
(1) フリーアドレス
フリーアドレスにすることで、カジュアルな情報交換を促進し、一体感を醸成します。
(2) ノマドエリア
ノマドエリアではデスクの位置を自由に作り替えることが可能。チーム同士での打ち合せや個人での集中作業ができるよう可変的な空間を実現し、創造性を発揮します。
(3) パブリックエリア
パブリックエリアでは社外との情報交換をする場として、レセプションやセミナーも行える仕掛けがあり、間接照明で雰囲気を変える演出が可能です。
(4) 会議室
フォーマルな会議室として、意思決定の確認の場として活用します。
◆『エコなオフィス』で環境問題の意識を高める!
ミダスは「日本の山を再生したい」という環境問題に対しての強い意識から今回のオフィスリニューアルでは、多くの杉の間伐材を使用しております。使用箇所はデスクやキャビネット、床材や天井に多く使用しておりますので、オフィス全体には杉の香りが漂い、働く人へのリラックス効果を生みます。
また、照明は全てLEDに変えたことで、計算上13%のコスト削減を見込めます。
◆ビフォー・アフター画像
<ビフォー>
http://www.atpress.ne.jp/releases/33412/3_3.jpg
<アフター>
http://www.atpress.ne.jp/releases/33412/4_4.jpg
◆オフィスデザインの実績(一部抜粋)
「American Airlines,Inc.」「DHL Supply chain Ltd(Japan)」「Virgin Atlantic Airways」「株式会社ピアソン桐原」「株式会社博報堂コンサルティング」「MTV Networks Japan K.K」「Hurley Japan」
【会社概要】
社名 : 株式会社ミダス
URL : http://www.midasjapan.com/
所在地 : 東京都中央区築地3-9-9 ラウンドクロス築地
海外拠点 : 香港
事業内容 : オフィスコンサルティング業務、内装設計業務、
設備設計業務、プロジェクトマネジメント業務
内装工事、IT工事、家具調達代行業務、
ビル外装内装デザイン業務
設立 : 1977年8月1日
資本金 : 4千万円
代表者 : 代表取締役社長 奥村 元弘
Facebook URL : http://www.facebook.com/midas.company.ltd






















