【エスパシオ新富町】銀座エリアの新築スケルトン物件。配管剥き出し、天井が抜けた完全スケルトンだからできる自分たちらしいオフィスづくり。
株式会社しんか(東京都渋谷区 | 代表取締役 久田 友彦)が運営するスケルトン物件に特化した物件ポータルサイト「SKELETON OFFICE TOKYO(スケルトンオフィス東京)」が新着記事を公開いたしました。

スケルトンオフィス東京では、天井が高い、コンクリート打ちっぱなし、リノベーション、倉庫風物件など”かっこよくておしゃれな物件”を中心に物件をセレクトして物件を掲載しています。
今回、中央区新富町にある「エスパシオ新富町」の募集を開始しました。内見も随時受付をしています。
有楽町線 新富町駅 徒歩2分、賃料62.59万、94.07㎡の新築スケルトン物件です。
天井の高いスケルトンオフィス

▶︎Local history
新富町駅徒歩2分、宝町駅徒歩6分ほか銀座一丁目や東銀座と銀座エリアも徒歩圏内とアクセスが良いです。オフィス街のイメージがあるが周りには単身用マンションやビジネスホテルが多く落ち着いたエリアになっています。郵便局や中央区役所、京橋税務署、築地警察署といった公共施設も多くあります。
▶︎Space
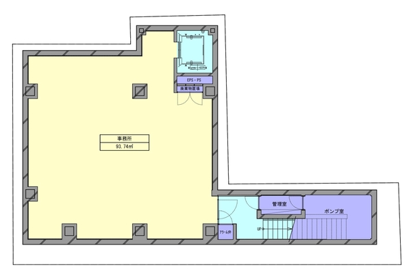
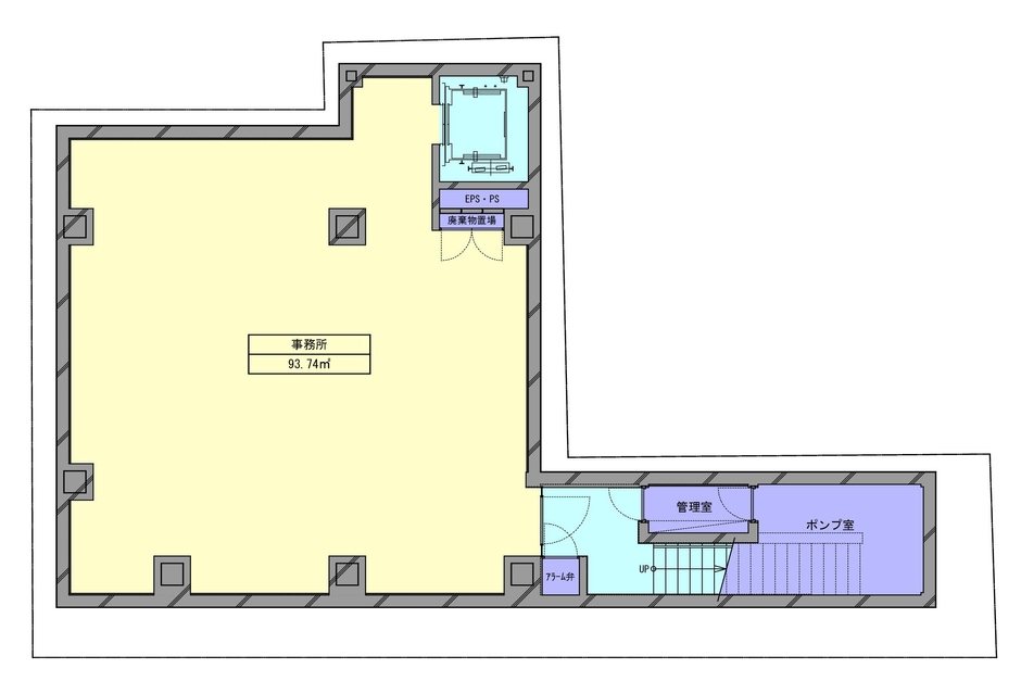
銀座エリアの新築スケルトン物件。今回紹介するのは最上階の11階部分(3〜11階は同じサイズ)28坪の区画。6階より上は抜けていて眺望もよい。4〜6人用のミーティングスペース、10名前後が利用できるフリーアドレスのデスクを置けそうなスペース。非常階段とエレベーターへの動線を抑えたレイアウトが必要そう。

地下1階〜5階は店舗区画で内装は完全スケルトンになっている。内装費用がかかる分スケルトン渡しにはフリーレントが2ヶ月つく。
6〜11階の上層階はオフィス区画となっており、天井、床、壁を貼った事務所仕様での引き渡しを予定。7階はモデルルームとなっているが、他区画は天井スケルトンになっており、壁・床は下地だけ済ませ、入居テナントのほうで素材を選べる仕様になっている。


事務所仕様の区画は、天井をスケルトンのままで床壁のみ貼っての引き渡しも可能。今流行りの天井が抜けたスケルトンオフィスでありながら、水回りは完備されたセミスケルトンです。


▶︎writers comment
駅から近く、有楽町線・銀座線・日比谷線など複数線路使え便利です。クリニック仕様のスケルトン物件のため配管を通すために床が20cmほど下がっていますが、水回りや天井、床など一部貸主負担のお引き渡しが相談可能です。まだなんの色にも染まっていないスケルトンだからこそ、そこに自分達らしい家具や植物、アートを持ち込んで理想的なオフィスがづくりができます。一棟貸しや地下1階の店舗区画、他フロアも募集中です。業種や用途はご相談ください。



DATA
物件名:エスパシオ新富町
所在地:東京都中央区新富町1丁目5-11
最寄駅:富町駅徒歩2分、宝町駅徒歩6分、銀座一丁目駅 10分
賃料:62.59万
管理費:5.69万
面積:94.07㎡
階層可能範囲:11階
原状回復:要確認
敷金:6ヶ月
礼金:1ヶ月
償却:1ヶ月
条件:スケルトン渡し(引き渡し状態ご相談可)
設備:エレベーター、個別空調、トイレ、光ファイバー引込可
築年:2022年
保険:要加入
構造規模:鉄骨造一部鉄筋コンクリート造地下1階付地上11階建
契約内容:普通賃貸借2年(期間相談可)
備考:
情報掲載社:株式会社しんか
取引様態:仲介
最終確認日:2022年8月17日
No.TYO-23-17-3
物件探しお手伝いします
スケルトンオフィス東京では「エスパシオ新富町」をはじめとした、かっこよくておしゃれな物件を日々掲載しております。社員が出社したくなるような、お客さんを招きたくなるような、そんな物件揃ってます。



他にも「天井が高い物件を探している」「内装をガッツリ作り込みたい」などオフィスや店舗物件を探している方は以下よりお問い合わせください。
お問い合わせはこちら
スケルトンオフィス東京
事業内容
・スケルトンオフィス物件の仲介
・オフィス家具や植物の提供
・スケルトンオフィス化のお手伝い(条件交渉、空間作り、サブリース)
| Web |
https://skeleton-office.tokyo/
| Instagram |
https://www.instagram.com/skeleton.office.tokyo/
| Facebook |
https://www.facebook.com/skeleton.office.tokyo/
| LINE |
https://page.line.me/510mmzgk?openQrModal=true
| Twitter |
https://twitter.com/skeleton_office
| Youtube |
https://www.youtube.com/channel/UCKkgakWHsZxETS_yF5VOU6g
運営会社:株式会社しんか
提供サービス
・居抜きオフィス探し、居抜きオフィス退去
・シェアオフィス企画、運用・スペース運用
・WEB会議ツール提供、企業のデジタル化、オフィス移転コンサル
・いらなくなった家具を捨てない(https://eco-kagu.space/service/)
・起業支援サポート(https://startup-company.net/)
・高級家具の再利用(https://sinca.co.jp/rental-service/)
| TEL |
03-4510-6460
| Web |
https://sinca.co.jp/
























