築46年・築36年(築古分譲マンション)をリノベ販売! ~現代ニーズに合わせた快適な空間を演出~
商品
2017年4月24日 10:30株式会社リアル(本社:名古屋市中区、代表取締役:片田 一幸)は、室内を全面的に改修したリノベーションマンション『リアリノ』として、『パラシオン鶴舞』と『エスポア浄心III』を2017年4月28日に販売開始いたします。デザイナー家具・全室照明・全室レースカーテン・次世代再生木材ウッドデッキを含む、50項目のこだわりを持つリノベーション物件です。
(※デザイナー家具は『エスポア浄心III』に限ります。また、パラシオン鶴舞は45項目のこだわりになります。)
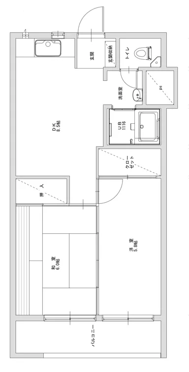
■築46年『パラシオン鶴舞』
築古をフルリノベーションし、現代ニーズに合わせた快適な生活を保証
スケルトン(コンクリート躯体のみ)の状態から施工し、適合リノベーションのR1住宅(※)として安心・安全な住宅を提供します。和室とDKの2部屋を開放感のある14.1帖のLDKとし、寝室の間口の広いスライドドアによりホテルライクを漂わせる一体感を実現しました。
Before
https://www.atpress.ne.jp/releases/127103/img_127103_2.jpg
After
https://www.atpress.ne.jp/releases/127103/img_127103_3.jpg
<パラシオン鶴舞 S46年6月築 43.2m2>
名古屋市昭和区山脇町2丁目12-2(地下鉄鶴舞線荒畑駅より徒歩6分)
H29年4月28日 販売開始予定(1,380万円)
※ リノベーション住宅推進協議会が定める、「統一規格」に則ったリノベーション(検査→工事→報告+保証+住宅履歴情報の一連のフロー)が施された既存住宅のこと
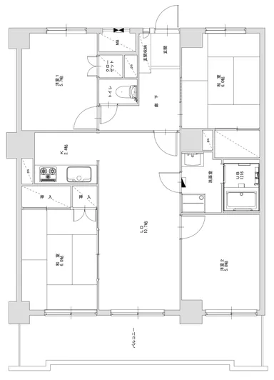
■築36年『エスポア浄心III』
2LDK+土間~4LDKまで6パターンからライフスタイルに合わせられる“リノベセレクト”
リノベーション1期工事完了時では、80.51m2の空間に2LDK+土間といった贅沢な間取り。契約後に2期工事として、LDと土間の2か所について用意されたプランから選択して変更可能になっております。組み合わせによっては6パターンの間取りが実現可能で、ライフスタイルに合わせることができます(二期工事費用は価格に含みます)。
約80m2のお部屋をフルオーダーでリノベーションは高額になりますが、総戸数500件以上のリノベーション物件を扱うリアルだからこその低価格を実現しました。
≪リビングダイニング 開放感のあるリビングダイニングの利用≫
1) 部屋数が必要ない方はそのまま活用
南向きの16.5帖をふんだんに利用可能なため、ご友人を招いてパーティをしたり、お子様が巣立った方には、ご家族の集まりで一部屋で会することができます。
2) 部屋数が必要な方は2部屋に分割
リビングダイニングは10.7帖、洋室は5.8帖に分けることが可能です。
≪土間 玄関から続くフリースペース(7.4帖)≫
1) 部屋数が必要ない方はそのまま活用
コンクリート打ちっぱなしの土間は、細かい汚れを気にせず活用できます。自転車やキャンプ用品、スポーツ用品などアウトドアで活躍するアイテムの収納やメンテナンス等、存分に趣味を楽しむための空間にも。また、小さなお子様が遊ぶスペースにもなるなど、幅広い使い方ができます。
2) 土間を残しつつ、ウォークインクローゼット(3.8帖)をプラス
備え付けの収納では足りない!という方には、ウォークインクローゼットがお勧め。洋服が多い方にはクローゼットとして、その他季節外のアイテム収納にもピッタリです。天井まで目一杯収納できるため、収納力重視の方にお勧めです。また、玄関からの土間スペースも残っているので、自転車やベビーカーなど屋外で利用したまま置いておけます。
3) 土間を無くし、洋室にチェンジ
部屋数が必要な方には、5.5帖の洋室も確保できます。ご家族が多い方、書斎や裁縫などインドアの趣味のためにお部屋がほしい方には、このプランがお勧めです。
Before
https://www.atpress.ne.jp/releases/127103/img_127103_4.jpg
基本プラン
https://www.atpress.ne.jp/releases/127103/img_127103_5.jpg
二期工事プラン A
https://www.atpress.ne.jp/releases/127103/img_127103_6.jpg
二期工事プラン B
https://www.atpress.ne.jp/releases/127103/img_127103_7.jpg
<エスポア浄心III S56年6月築 80.51m2>
名古屋市西区笠取町3丁目39(地下鉄鶴舞線庄内通駅から徒歩9分)
H29年4月28日 販売開始予定(2,280万円)
*オープンハウス情報
『パラシオン鶴舞』『エスポア浄心III』ともに、H29年4月29日(土)・30日(日)に開催予定。
■会社概要
株式会社リアル
本社 : 愛知県名古屋市中区新栄2丁目1番34号 リアル新栄ビル1階
代表 : 代表取締役 片田 一幸
設立 : 2000年12月12日
事業内容: リノベーション事業全般、不動産売買など
URL : http://real-inc.jp/
※「リアリノ」にてネット検索
(※デザイナー家具は『エスポア浄心III』に限ります。また、パラシオン鶴舞は45項目のこだわりになります。)
■築46年『パラシオン鶴舞』
築古をフルリノベーションし、現代ニーズに合わせた快適な生活を保証
スケルトン(コンクリート躯体のみ)の状態から施工し、適合リノベーションのR1住宅(※)として安心・安全な住宅を提供します。和室とDKの2部屋を開放感のある14.1帖のLDKとし、寝室の間口の広いスライドドアによりホテルライクを漂わせる一体感を実現しました。
Before
https://www.atpress.ne.jp/releases/127103/img_127103_2.jpg
After
https://www.atpress.ne.jp/releases/127103/img_127103_3.jpg
<パラシオン鶴舞 S46年6月築 43.2m2>
名古屋市昭和区山脇町2丁目12-2(地下鉄鶴舞線荒畑駅より徒歩6分)
H29年4月28日 販売開始予定(1,380万円)
※ リノベーション住宅推進協議会が定める、「統一規格」に則ったリノベーション(検査→工事→報告+保証+住宅履歴情報の一連のフロー)が施された既存住宅のこと
■築36年『エスポア浄心III』
2LDK+土間~4LDKまで6パターンからライフスタイルに合わせられる“リノベセレクト”
リノベーション1期工事完了時では、80.51m2の空間に2LDK+土間といった贅沢な間取り。契約後に2期工事として、LDと土間の2か所について用意されたプランから選択して変更可能になっております。組み合わせによっては6パターンの間取りが実現可能で、ライフスタイルに合わせることができます(二期工事費用は価格に含みます)。
約80m2のお部屋をフルオーダーでリノベーションは高額になりますが、総戸数500件以上のリノベーション物件を扱うリアルだからこその低価格を実現しました。
≪リビングダイニング 開放感のあるリビングダイニングの利用≫
1) 部屋数が必要ない方はそのまま活用
南向きの16.5帖をふんだんに利用可能なため、ご友人を招いてパーティをしたり、お子様が巣立った方には、ご家族の集まりで一部屋で会することができます。
2) 部屋数が必要な方は2部屋に分割
リビングダイニングは10.7帖、洋室は5.8帖に分けることが可能です。
≪土間 玄関から続くフリースペース(7.4帖)≫
1) 部屋数が必要ない方はそのまま活用
コンクリート打ちっぱなしの土間は、細かい汚れを気にせず活用できます。自転車やキャンプ用品、スポーツ用品などアウトドアで活躍するアイテムの収納やメンテナンス等、存分に趣味を楽しむための空間にも。また、小さなお子様が遊ぶスペースにもなるなど、幅広い使い方ができます。
2) 土間を残しつつ、ウォークインクローゼット(3.8帖)をプラス
備え付けの収納では足りない!という方には、ウォークインクローゼットがお勧め。洋服が多い方にはクローゼットとして、その他季節外のアイテム収納にもピッタリです。天井まで目一杯収納できるため、収納力重視の方にお勧めです。また、玄関からの土間スペースも残っているので、自転車やベビーカーなど屋外で利用したまま置いておけます。
3) 土間を無くし、洋室にチェンジ
部屋数が必要な方には、5.5帖の洋室も確保できます。ご家族が多い方、書斎や裁縫などインドアの趣味のためにお部屋がほしい方には、このプランがお勧めです。
Before
https://www.atpress.ne.jp/releases/127103/img_127103_4.jpg
基本プラン
https://www.atpress.ne.jp/releases/127103/img_127103_5.jpg
二期工事プラン A
https://www.atpress.ne.jp/releases/127103/img_127103_6.jpg
二期工事プラン B
https://www.atpress.ne.jp/releases/127103/img_127103_7.jpg
<エスポア浄心III S56年6月築 80.51m2>
名古屋市西区笠取町3丁目39(地下鉄鶴舞線庄内通駅から徒歩9分)
H29年4月28日 販売開始予定(2,280万円)
*オープンハウス情報
『パラシオン鶴舞』『エスポア浄心III』ともに、H29年4月29日(土)・30日(日)に開催予定。
■会社概要
株式会社リアル
本社 : 愛知県名古屋市中区新栄2丁目1番34号 リアル新栄ビル1階
代表 : 代表取締役 片田 一幸
設立 : 2000年12月12日
事業内容: リノベーション事業全般、不動産売買など
URL : http://real-inc.jp/
※「リアリノ」にてネット検索
























