建築家と建てる家を取り扱う「FDM株式会社」 9月30日、新モデルハウスが大分県大分市にオープン
FDM株式会社(本社:大分県大分市金池南1-3-31、代表取締役社長:高倉 潤 @juntakakura.fdm https://www.instagram.com/juntakakura.fdm/ )が手掛ける新モデルハウスが大分県大分市高崎にオープンいたしました。

内観写真(1)
【自然素材で包む家】
人生で最も多くの時間を過ごす「家」。だからこそ、環境に優しい素材を選び、健やかに暮らす。
自然の力を味方にしたサステナブルな住まいを「母屋と離れ」という形でご提案いたします。

内観写真(2)

内観写真(3)

内観写真(4)

内観写真(5)
【宅地のありかたも変わっていく。傾斜地の住宅地の更新】
本敷地は、大分市内の宅地が多くみられるエリアに位置してあり、高低差が大きいのが特徴です。宅地造成当時、駐車場は1家に1台が主流であった中、今回新たに造成工事を計画。駐車場は2台とし、擁壁を再築した上でモデルハウスを計画しました。
建物は、傾斜地ならではの眺望を活かす一方隣家からの視線を和らげるよう2階建ての住居と離れ計画し、間に中庭を設けています。宅地造成から住宅の建て替えまで、今後の建て替え需要を見越したモデルケースになればと考えます。

外観パース(1)

外観パース(2)

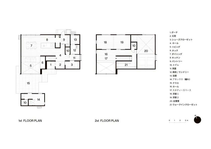
平面図
【自然素材の断熱材。家にも人にも優しい住まい】
住まいを包む断熱材には、充填断熱工法と外張り断熱工法の「ダブル断熱工法」を採用しています。充填断熱材には、新聞紙からパルプを取り出した木と同じ性質を持つ「デコスファイバー(株式会社デコス https://www.decos.co.jp/ )」を使用、外張り断熱材には、木繊維断熱材の「ECOボード(GERMAN HOUSE株式会社 https://www.germanhouse.co.jp/ )」を使用し、冬期には包まれたような温かさをもたらすだけでなく、夏期には外気温や日射による熱を伝えにくくし、室内を快適に保ちます。また、透湿性と調湿性にも優れており、壁体内結露の発生を防ぎます。

木質繊維系断熱材デコスファイバー

木繊維断熱材ECOボード
【自然な温かさと涼しさが心地よい。輻射式冷暖房システムF-CON】
冷暖房機能には、遠赤外線の輻射(放射)効果を利用した無風・無音の冷暖房システム「F-CON」( https://www.a-hikari.com/ )を採用。従来のエアコンのような風によるホコリが立つこともなく、肌の乾燥や喉の不快感などストレスの原因となる空気の過乾燥もありません。空調ならではの動作音を発生させない、ストレスの無い暮らしを実現します。

風がでない全館空調F-CON
【詳細】
グランドオープン : 2023年9月30日(土)~
会場 : 大分県大分市高崎
来場に関するお問合せ: FDM HOME大分店 〒870-1155 大分県大分市大字玉沢717-1
電話番号 : 0120-686-588
営業時間 : 10:00~18:00 水曜定休日
【FDM株式会社】
Fundamentals for the public
住環境における本質の追求

FDM株式会社
私たちを取り巻く環境、働き方、価値観はかつてないスピードで変化し、住環境に求められるものも多様化しています。そのような中でも、変わらない本質的なもの(Fundamentals)が住環境にあり、その本質を備えたものこそが、将来へと残していける「永く続く器」になります。FDMは「永く続く器」を全ての人々と追求し、暮らし・文化・社会・地球をつくっていくハウジングサービス会社です。
HP : https://fdms.co.jp/
Instagram: @fdm_inc https://www.instagram.com/fdm_inc/




![FDM株式会社が手がけた
個人邸[house T]が「2022年度グッドデザイン賞」を受賞](/releases/326911/LL_img_326911_1.jpg)


















