女性専用寄宿舎シェアハウス 「かぼちゃの馬車」を運営するスマートライフ 銀座の本社オフィスにモデルルームを併設
~入居者の契約前の実際の物件内覧と並行して活用、 物件購入候補者向けにも積極的に内覧を実施~
企業動向
2016年4月28日 13:00 東京都内中心に女性専用の寄宿舎シェアハウス「かぼちゃの馬車」を運営する株式会社スマートライフ(本社:東京都中央区、代表取締役:大地 則幸、以下「スマートライフ」)は、2016年5月2日に東京都中央区銀座にある本社オフィス内にモデルルームを開設することを本日発表します。
スマートライフは、寄宿舎シェアハウスの入居者に対して契約締結前に実際の入居物件の内覧を実施しています。同物件の購入を希望するオーナー候補者にも利便性を考慮した竣工直後などの物件を選定し、内覧を実施してきました。入居や物件購入について、まだ検討段階の人に寄宿舎シェアハウスの利点や実際の様子、雰囲気をいかに迅速かつ的確に理解してもらえるかが課題の一つでした。
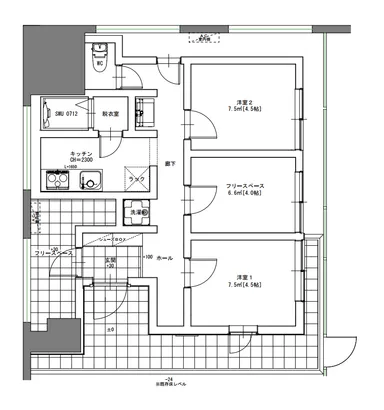
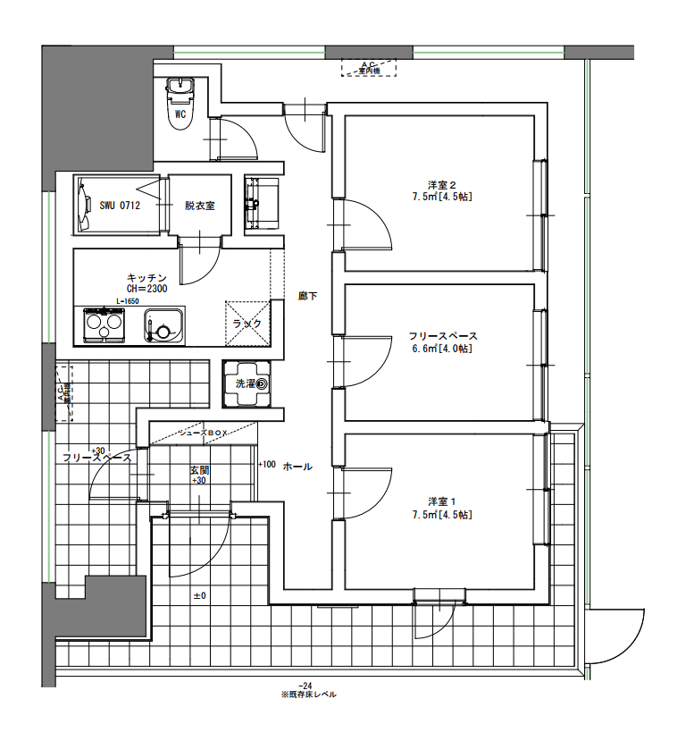
このたび、本社オフィスを5階1フロアから4階を新たに賃貸、2フロアに拡張しました。4階に本社機能の一部を移転、5階には入居や物件販売との関わりが深い、部署を残し、フロアの一角に51.98平米のモデルルームを開設しました。
モデルルームの概要は次のとおりです。
◆モデルルーム概要
・総面積 :51.98平米
・2部屋面積 :7.5平米(4.5帖)
・フリースペース:6.6平米(4.0帖)
スマートライフは、従来通り、入居者に対して契約前に実際の物件内覧を実施しつつ、並行して早い段階で利便性の高い銀座のモデルルームを内覧することで入居、物件購入の成約率向上や成約までの期間短縮を企図しています。
■株式会社スマートライフ http://www.smt-life.co.jp
会社名 :株式会社スマートライフ
所在地 :東京都中央区銀座1-7-10 ヒューリックビル4階・5階
TEL :03-3535-0111
FAX :03-3535-0555
代表取締役 :大地 則幸
資本金 :100,000,000円
設立日 :2012年8月2日
従業員 :120名(2016年1月末日現在)
事業内容 :不動産の売買・仲介・幹施・賃貸・管理及び寄宿舎の経営・
人材紹介事業
運営寄宿舎数 :230棟2,788居室(2016年3月末日現在)
総受注居室数 :576棟7,921居室(2016年3月末日現在)
























