「興福寺」に関するプレスリリース


興福寺の調査(平城第673次)成果について
奈良文化財研究所
2026年1月23日 17:00


初詣バスの運行について
奈良交通株式会社
2025年12月19日 14:00


奈良観光キャンペーン「わたしは、奈良派。」 イメージキャラクター 杏さんのラッピングバスを 10月24日(金)から運行します!
近鉄グループホールディングス株式会社 奈良県 奈良交通株式会社
2025年10月23日 14:00


舞楽面の優品49点が一堂に集結する 特別展「みやこの舞楽―舞楽面と舞楽図でたどる芸能の美―」 を開催いたします
公益財団法人 大和文華館
2025年9月16日 15:00


初詣バスの運行について
奈良交通株式会社
2024年12月20日 15:00


定期観光バス インバウンドコース “Perfect Nara Park Tour" 運行時刻変更と車両のラッピングについて
奈良交通株式会社
2024年12月4日 16:00


『吉野山舟知家資料調査報告書』を公開しました
奈良文化財研究所
2024年7月5日 13:50
![[奈文研イベント]第23回古代瓦研究会シンポジウム](/img/no_image.jpg)
![[奈文研イベント]第23回古代瓦研究会シンポジウム](/img/no_image.jpg)
[奈文研イベント]第23回古代瓦研究会シンポジウム
奈良文化財研究所
2023年12月4日 09:00


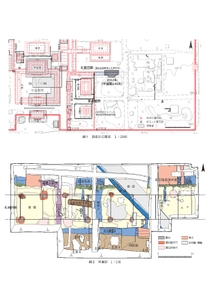
興福寺東金堂院北面回廊の発掘調査(平城第649次調査)の現地見学会のご報告
奈良文化財研究所
2022年10月27日 09:00
![[プレスリリース]興福寺東金堂院北面回廊の発掘調査(平城第 649 次調査)](https://newscast.jp/attachments/DfbayZ9Lqz7Vvx1tBOet.jpg)
![[プレスリリース]興福寺東金堂院北面回廊の発掘調査(平城第 649 次調査)](https://newscast.jp/attachments/DfbayZ9Lqz7Vvx1tBOet.jpg)
[プレスリリース]興福寺東金堂院北面回廊の発掘調査(平城第 649 次調査)
奈良文化財研究所
2022年10月13日 12:00
![[奈文研イベント]興福寺東金堂院の回廊の発掘調査(平城第649次調査)現地見学会](/img/no_image.jpg)
![[奈文研イベント]興福寺東金堂院の回廊の発掘調査(平城第649次調査)現地見学会](/img/no_image.jpg)
[奈文研イベント]興福寺東金堂院の回廊の発掘調査(平城第649次調査)現地見学会
奈良文化財研究所
2022年9月29日 09:00
![[奈文研コラム] 夏酒](https://newscast.jp/attachments/mZG0HbKVdBce63zaAp5j.jpg)
![[奈文研コラム] 夏酒](https://newscast.jp/attachments/mZG0HbKVdBce63zaAp5j.jpg)
[奈文研コラム] 夏酒
奈良文化財研究所
2022年9月1日 09:00


近大生による猿沢池やその周辺の環境調査・保全活動 「ひとななプロジェクト」を支援する募金ボタン付き自動販売機を設置
学校法人近畿大学
2021年10月5日 15:30


猿沢池や周辺環境を調査・保全する「ひとななプロジェクト」始動 4月15日に猿沢池で生物の採集調査を実施
学校法人近畿大学
2021年4月13日 15:00


猿沢池に興福寺の258年前の古瓦で魚礁を設置 池の生態系保全と観光資源の価値向上をめざす
学校法人近畿大学
2020年9月11日 13:30
1