ミニマルで、“個”を重視したライフスタイルの提案 「パーソナルスタジオ+イエ(パーソナルティーハウス)」を発表
デザインを重視した「ミニマルな家」を提案している株式会社ゆずデザイン(京都市山科区)は、この度、新たなコンセプトハウス「パーソナルスタジオ+イエ(パーソナルティーハウス)」を発表しました。現在、モデルハウスを公開、販売しています。間口3mと、京都市内の住宅街ではよく見かけるサイズで、奥行きも9m、延べ床面積は15坪しかない一軒家。同社がこれまで提唱してきた、ちょうどいい大きさで、小さく、豊かに暮らす「ミニマルデザイン」の家“tsutsumu(つつむ)”の新展開です。決して広いとは言えないこの空間をどのように使って、どんなライフスタイルを提案しているのか―。内部のレポートとともにご紹介します。

玄関土間ホール
■家族と過ごしながら、“個”の場所もしっかり確保
「パーソナルスタジオ+イエ(パーソナルティーハウス)」のコンセプトにあるのは“個”。
リモートワークが日常になってきた近頃では、「家」と「仕事」の境界線はあいまいです。自宅でできるのであればと、「自分の“好き”を仕事に」とチャレンジする人もいるでしょう。家での暮らしを楽しみながら、仕事や趣味にも打ち込む。「パーソナルスタジオ+イエ(パーソナルティーハウス)」はそんな人を応援する空間です。

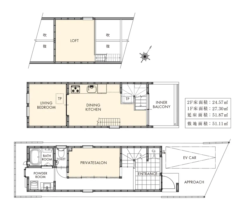
図面
1階には、玄関ホールから続くプライベートサロンがあり、ここが「パーソナルスタジオ+イエ(パーソナルティーハウス)」の中核となるスペース。ガラスの仕切りを備えた4.5帖ほどの空間で、リモートワークをするもよし、ネイルやエステのサロンを開業するもよし。趣味で作っている雑貨を販売したり、作品を制作・展示するアトリエ兼ギャラリーにするのもいいかもしれません。1階には、このほか、バスルーム、トイレ、手洗いがあり、例えば、プライベートサロンでヨガのレッスンをして、バスルームで汗を流すこともできる造りです。

パーソナルスタジオ
家族と過ごすのは2階。ダイニングキッチンの奥には、壁面に画像を映し出すホームシアター。ここにソファベッドを用意すれば、リビングとしても、ベッドルームとしても利用可能です。さらにロフトも備えており、こちらもプライベートな空間として活用できます。

リビング・ダイニング・キッチン
■機能性を追求してオンもオフも快適に
このモデルハウスでは機能性を追求していることも特徴です。それはインナーバルコニーの前に立つと最も感じることができます。2階への階段を上がった左手、一面の窓の外には、山科川と川沿いの桜並木の景色が広がっています。春には窓が桜色に染まるロケーションです。そして、少し離れたところに高速道路の壁が見えますが、室内にいると車を走る音は全くと言っていいほど聞こえてきません。これは、この部分の窓に遮音性に優れたアルゴンガス入りのペアガラスを採用しているため。この「パーソナルスタジオ+イエ(パーソナルティーハウス)」では、ゆずデザインがこれまで大切にしてきた自然素材に加え、省エネや耐震性といった機能性も重視しています。オンもオフも過ごす家だからこそ、より一層快適さが求められると考えているのです。

インナーバルコニー
■ミニマルな暮らしを豊かにするデザイン力
そして感じていただきたいのは、ミニマルな空間でありながら、狭さや圧迫感がないこと。それは同社代表取締役で建築デザイナーの田中政和による巧みなテクニックによるものです。
ポイントを一つひとつ見てみましょう。
(1) 土間の玄関ホール
複数人が一度に出入りしても窮屈にならないゆとりある広さ。道路側に設けた大きな窓が外の空間を引き込んで、開放感をもたらしてくれます。

玄関土間ホール
(2) プライベートサロンの透明の仕切り
透明なので閉じておいても圧迫感はありませんが、仕切る必要がない時は開けておき、1階をより広く使うことができます。

パーソナルスタジオ
(3) 空間に抜け感をもたらす、吹き抜けのようなステップ階段
1階と2階をつなぐらせん状の階段や、2階からロフトへとあがる階段はステップ階段となっていて、風も通り、吹き抜けのようなつくり。家全体が空間としての一体感を持っています。

ステップ階段
(4) すっきりと見せる工夫
間接照明を多く用い、壁の幅木は低めに。スイッチやコンセントもデザイン性に優れたものを厳選しています。こうして細部にこだわり、できるだけシンプルに、すっきりと見せる工夫をしています。

キッチンイメージ
(5) メリハリのある色や素材使い
カラーは白を基調に、グレーとブラウンをバランスよく配置。使用している素材も、木材、タイル、アイアンと多様ながらも、それがメリハリを感じさせ、空間のアクセントとして調和しています。
仕事を生活の一部に。趣味をより楽しむために。「パーソナルスタジオ+イエ(パーソナルティーハウス)」はミニマルに、豊かに暮らす新しいライフスタイルを提案する住まいです。モデルハウスの見学や購入検討の問い合わせなど、下記までお問い合せください。

外観
















