北欧基準の断熱性能を持つサステナブルな規格住宅 「LUFT HUS(ルフトゥフス)」2020年夏より販売開始予定
人生100年時代に対応する環境と健康に配慮した住宅を全国規模で展開
断熱と空調設計に特化したサステナブル住宅を専門に設計を行う株式会社ハルタ(所在地:長野県上田市、代表:徳武 睦裕)は、高い断熱性能はそのままにコストを最小限に抑えた当社初の規格住宅「LUFT HUS(ルフトゥフス)」を2020年夏販売開始予定。全国展開に先駆け、限定1棟でモデルハウスモニターを募集します。

LUFT HUS 外観イメージ
コンセプトは「空気をデザインする家」。デンマーク・コペンハーゲンに拠点を置く同社が、断熱や気密性に厳しい基準を設けた北欧の住宅をもとに日本の気候やライフスタイルに合わせ、暮らしの健康を重視する世帯をターゲットに商品開発を行いました。「LUFT」はデンマーク語で空気、「HUS」は家を意味します。

LUFT HUS 内観イメージ
最大の特徴は、エアコンやストーブを使用せずに年中快適な空気環境を実現する空間設計。デンマークから独自のルートで建材を直輸入するため、世界的に見てトップ基準と言われる北欧の優れた建材を最小限のコストで使用可能。断熱・防音・防火性に優れたリサイクル可能なデンマーク製の建材「ROCKWOOL」で壁、床、屋根まで家全体を覆う外断熱の仕様と、熱交換式換気システム、除湿型放射冷暖房、高断熱・高気密なトリプルガラスの木製サッシを用い、国土交通省が定める基準値の約4倍の断熱性能を実現しています(※1)。この仕組みを用いたハルタの住宅の総称「haluta house」は、一般社団法人ソーシャルプロダクツ普及推進協会が開催するソーシャルプロダクツ・アワード2020にて「ソーシャルプロダクツ賞」を受賞しています。

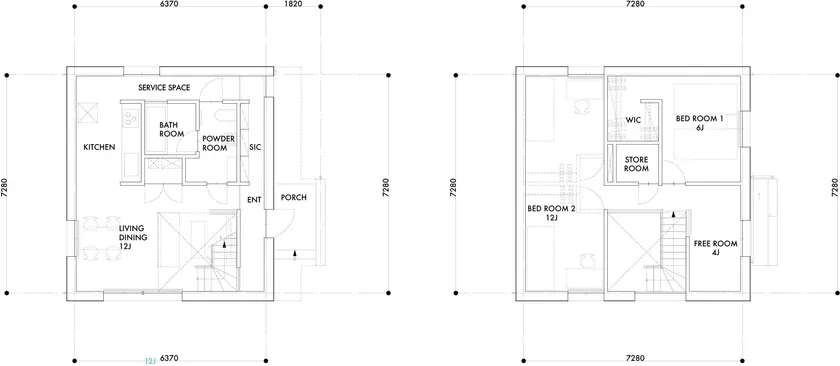
LUFT HUS 間取り図
間取りは1階はリビングダイニングを中心に「共有する」スペースが集合。水まわりを集約した回遊できる空間と、階段の吹き抜けが特徴。2階はウォークインクローゼットを備えた個室と寝室で構成され、家族構成や目的に合わせてオプションで一部間取りの変更が可能です。外観および内観は100年以上住み続けても流行り廃りのない北欧の住宅デザインをベースに、長く愛されるシンプルな意匠を採用しています。
創業から20年間培ってきたライフスタイル事業の知識と経験を活かし、住宅先進国といわれる北欧のノウハウを取り入れることで、現在約30年と言われる日本の住宅寿命を伸ばし、健康幸福度を上げるのが狙い。近年の環境問題や予防医療への関心の高まり、消費者の「コト消費」への行動変化に住宅の分野でアプローチします。
※1
国土交通省が定める建築物省エネ法の断熱性能地域区分4における外皮平均熱貫流率(UA値)基準値が0.75であるのに対し、LUFT HUSは0.2。これは住宅先進国と言われるデンマークのパッシブハウスで採用されている性能値と同等となります。
■建物概要
建築本体価格:2,700万円~(税抜)
延床面積 :94.8m2(28.6坪)
床面積 :1F:46.4m2(14坪)/2F:48.4m2(14.6坪)
※構造、仕様等は一般地域のものです。防火指定等の条件により異なる場合があります。
■モデルハウスモニター募集要綱
建築本体価格:2,500万円~(税抜)
・ご入居までの1ヶ月間オープンハウス、および入居後の見学会にご協力いただける方
・入居から1年間、室内環境の数値計測をしていただける方
・2020年6月30日までにお申し込みいただける方
・全国可(一部の離島は対象外となる場合がございます)
■株式会社ハルタについて
長野県上田市、東京、デンマークのコペンハーゲンに拠点を持ち、暮らしの醫食住にまつわる事業を営む会社です。北欧の引き継ぎ型社会にならい、持続可能な未来に向けてヴィンテージ家具や雑貨の輸入販売、デンマークの食文化より着想を得た安心・安全なパンの製造販売、また一級建築士事務所として断熱と空調設計を主軸にした住宅や店舗の設計を行なっています。
名称 : 株式会社ハルタ
設立 : 2000年6月
代表者 : 徳武 睦裕
所在地 : 〒386-1106 長野県上田市小泉821-1
公式サイト: http://www.haluta.jp/
























