屋上でリフレッシュできる共用ラウンジ付きオフィス、募集中です。
西麻布交差点近くのビル7階、共用ラウンジ・会議室・複合機、屋上バーカウンターもあります!


オフィス移転のコストを大幅カット!ベンチャーや開業間もない会社さんにピッタシ!?
テイショク西麻布はオフィス機能ではあるものの、常時使っていない設備をシェアしあう事で、設備投資にかける時間、経済的コストをカット。入居後にすぐに業務を開始できます。
テイショク西麻布は、以下の施設を共用で利用できます。
・ガスコンロ付きのキッチン。撮影にも。
・大きな窓で明るいラウンジで打ち合わせ可能。
・六本木の夜景がイチオシの屋上でリフレッシュ。
・気密性の高い会議室あります。
・複合機(コピー、スキャン)設置済。
・ウォーターサーバーやコーンスープ等各種ドリンク飲み放題。
・面倒な回線手続きは不要!インターネット(NURO回線)敷設済
・Youtubeで広告している?撮影機材もご自由に利用いただけます。
ラウンジはカジュアルな打ち合わせや、気分を変えて仕事をしたいときなどご利用いただけます。コロナ前などは仕事終わりにテナント同士で飲んでいたりしたことも。







オンとオフ。西麻布のワークスタイル。
当施設には遊び心が散りばめられています。
アイデアにに詰まったら。 → 会議室で卓球!
お昼ご飯後で頭がぼんやり → ハンモックでスッキリ!
朝活したいな → ヨガでも使えます!
今月ピンチ → 金曜日はフリーランチの日です!
ちょっと小腹がすいたら → おやつがあるかも。
他社さんってどんなところ? → 定期的にイベントあります。






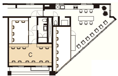
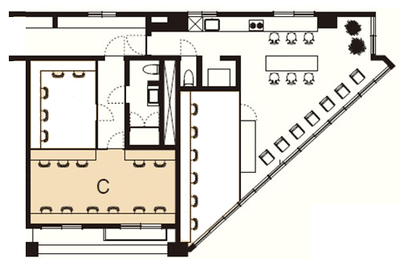
募集中のお部屋について



RoomCはすでに机や椅子がセットアップ済です。
ラップトップ程度のPCでの作業であれば6~7人ほど入ることができます。
今だけ!お得なキャンペーン中!
★3月中までのご入居で、賃料本体価格を216,000円のところを、188,000円でご案内中!
まずは金曜日のお昼のランチを食べながらご見学、如何でしょうか。
物件の詳細な資料は以下より閲覧いただけます。
https://bit.ly/39tuowq
また、見学やその他お問い合わせについて
テナワン株式会社
物件担当:森野
080-8045-2024
どうぞよろしくお願いいたします!































