東海大学×神奈川県住宅供給公社 連携プロジェクト第1弾!
~学生提案のリノベーション、伊勢原団地を地域の交流拠点に~
神奈川県住宅供給公社(理事長:浅羽 義里)および東海大学(学長:山田 清志)は、令和2年1月16日付けで締結した「団地利活用で地域創生を目指す連携協定」に基づくプロジェクトの第1弾として、伊勢原団地12号棟の学生入居用改修事業を進める運びとなりました。
伊勢原団地は築54年が経過し、空き住戸も増えていることから、12号棟(32戸)の用途廃止(団地集約)を決定。これを受けて、当団地に近い東海大学の湘南キャンパス及び伊勢原キャンパスの学生に入居してもらうため、学生入居用にリノベーションを行うとともに、学生と地域をつなぐ拠点として地域コミュニティスペースを新設するなど、団地周辺地域の活性化を目指します。
このリノベーションについては、建築学科の学生からリノベーション案(「専有部及び共用部」)を募集し、学内の講評会にて最優秀賞案を令和2年9月に決定。それをもとに他の学生案も取り込みつつ、設計事務所との打ち合わせや工事監理などにも学生に参加してもらいながら、当公社と共同で設計業務(各種法令等の確認・調整等)を行います。なお、入居は令和4年4月を予定しています。
また、本プロジェクトでは、東海大学工学部建築学科で非常勤講師を務めた経験もあり、グッドデザイン賞入賞、JIA日本建築大賞日本建築家協会優秀建築100選に選ばれるなど、多数の受賞実績を持つ「納谷建築設計事務所(共同代表:納谷 学〔なや まなぶ〕・納谷 新〔なや あらた〕)」に設計業務を発注し、ご協力を頂く予定です。


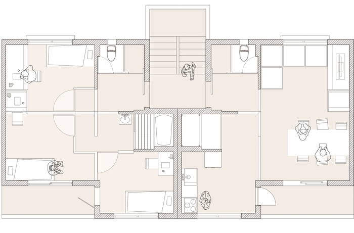
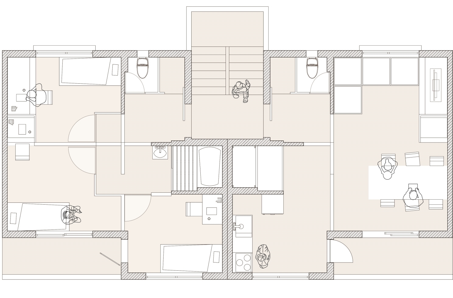
最優秀賞案 概要
〇住戸は「2人部屋」及び「2戸1プラン(2人部屋)」を計画
〇1階5住戸程度を学生の利用だけではなく、地域活性化を目的とした共用部として計画
〇ウッドデッキ、共同菜園等の外部コミュニティ活動として利用できるスペースを外構にて計画
伊勢原団地12号棟 概要
〇所在地 神奈川県伊勢原市八幡台1丁目6-4
〇敷地面積 約3,210m2
〇構造等 壁式鉄筋コンクリート造、地上4階建、1棟32戸
○アクセス 小田急線伊勢原駅より徒歩15分、またはバス5分
今後のスケジュール(予定)
〇令和3年1月9日~令和3年5月31日 設計業務
〇令和3年8月~令和4年3月 改修工事
〇令和4年4月 学生入居開始
関連サイト
「神奈川県住宅供給公社と東海大学の連携協定締結について」はこちら( https://www.kanagawa-jk.or.jp/news/?id=748 )をご覧ください。







