【天井抜けてるスケルトンオフィス】天高3.2m、渋谷駅から徒歩7分の物件に空室が出ました!【事務所、店舗物件】
成長企業のオフィス探しを手がける株式会社しんか(東京都渋谷区 | 代表取締役 久田 友彦)が運営するスケルトン物件に特化した物件ポータルサイト「SKELETON OFFICE TOKYO(スケルトンオフィス東京)」が新着記事を公開いたしました。

スケルトンオフィス東京では、天井が高い、コンクリート打ちっぱなし、リノベーション、倉庫風物件など”かっこよくておしゃれな物件”を中心にセレクトして物件を掲載しています。
「ひきだしのような家に」の募集を開始します。渋谷駅徒歩7分、126.08㎡、賃料113.27万の店舗、オフィス物件です。

▶︎Local history
渋谷駅から公園通りを代々木公園方面に歩いて7分。いつも人で賑わっている渋谷の中では比較的落ち着いたエリアに位置する。ビル内には美容室やネイルサロン、カフェなどが入居している。

▶︎Space
1階のカフェ横のエレベーターで2階に上がる。エレベーターのドアが開くと廊下なしでこの広々とした空間が広がり、3.2mの天高が非日常の空間に来たような気持ちにさせる。重厚感のある壁と床、トタン仕様になっているチャーミングな天井にも注目してほしい。


▶︎writers comment
エレベーターのドアが開いた瞬間に思わず「開く」ボタンを連打しながら写真を撮ってしまいました。これぞスケルトン物件!といった感じのドーンとしたお部屋でテンションが上がります。(エレベーターの中から連写した写真は興奮のせいかうまく撮れていなかったので泣く泣くボツにしております。)

DATA
物件名:ひきだしのような家に
所在地:東京都渋谷区神南1-15-8
最寄駅:渋谷徒歩7分
賃料:113.27万円
管理費:125,862円
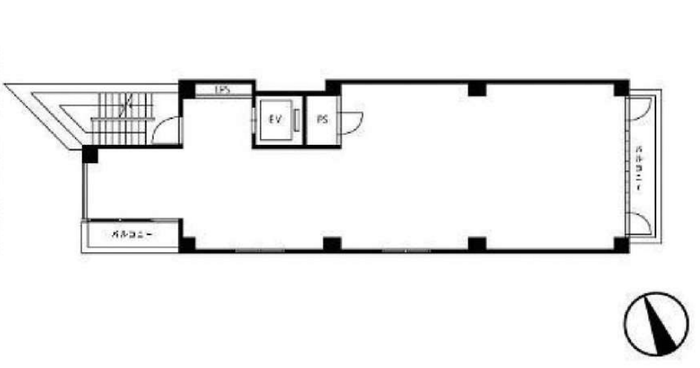
面積:126.08㎡
階層可能範囲:2階
原状回復:要相談
敷金:なし
礼金:1ヶ月
保証金:6ヶ月
補償金償却:更新時30%
条件:
設備:冷房、暖房、個別空調、エレベーター
築年:1982年
保険:要加入
構造規模:鉄骨鉄筋コンクリート造7階建地下2階
契約内容:定期借家3〜5年
備考:
情報掲載社:株式会社しんか
取引様態:仲介
最終確認日:2022年9月8日
No.tyo-23-10-75
お問い合わせはこちら
物件詳細
スケルトンオフィス東京
事業内容
・スケルトンオフィス物件の仲介
・オフィス家具や植物の提供
・スケルトンオフィス化のお手伝い(条件交渉、空間作り、サブリース)
| Web |
https://skeleton-office.tokyo/
| Instagram |
https://www.instagram.com/skeleton.office.tokyo/
| Facebook |
https://www.facebook.com/skeleton.office.tokyo/
| LINE |
https://page.line.me/510mmzgk?openQrModal=true
| Twitter |
https://twitter.com/skeleton_office
| Youtube |
https://www.youtube.com/channel/UCKkgakWHsZxETS_yF5VOU6g
運営会社:株式会社しんか
提供サービス
・居抜きオフィス探し、居抜きオフィス退去
・シェアオフィス企画、運用・スペース運用
・WEB会議ツール提供、企業のデジタル化、オフィス移転コンサル
・いらなくなった家具を捨てない(https://eco-kagu.space/service/)
・起業支援サポート(https://startup-company.net/)
・高級家具の再利用(https://sinca.co.jp/rental-service/)
スケルトンオフィス化したい!という方もご相談ください
自分たちのオフィスも普通のオフィス仕様だった物件をDIYしてスケルトンオフィス化をしました。
スケルトンオフィス化したいという場合もご相談ください。







