天高6.5m!まるで秘密基地のような元サウナの巨大完全スケルトン物件がテナント募集開始!
〜御徒町駅すぐの染まっていない空間スケルトン物件〜

スケルトンオフィス東京では、天井が高い、コンクリート打ちっぱなし、リノベーション、倉庫風物件など”かっこよくておしゃれな物件”を中心に物件をセレクトして物件を掲載しています。
2023年4月10日、上野広小路駅徒歩1分、御徒町駅徒歩2分にある商業ビル「大島第一ビル」が入居テナントの募集を開始いたしました。
床壁天井すべてが躯体表しの完全スケルトンの事業用賃貸物件です。

所在地:東京都台東区上野3丁目
交通:上野広小路駅徒歩1分、御徒町駅徒歩2分
構造:鉄筋コンクリート造一部軽量鉄骨造
規模:地下1階付6階建
天高:2.5m〜6.5m
階層可能範囲:2〜4階
面積:1,502㎡
設備: EV、光回線、警備、 看板
LOCATiON
JR山手線御徒町駅から徒歩2分。今回募集区画は人気百貨店松坂屋目の前の物件。東京の人気スポットアメ横が直ぐ近くにあり、観光客など多くの人で賑わう場所です。
SPACE
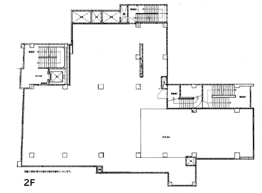
今回募集するのは2〜4階の3フロア一括。元サウナ施設をスケルトンにしており、床、壁、天井すべて躯体表しになっている。駅近ながらまるで秘密基地のような圧巻の空間。


そしてまず驚くのが天井の高さです。2階と3階は一部吹き抜けになっているところがあり、天高はなんと6.5m。巨大メゾネットみたく立体的に空間を使う事が出来る。

各階へはエレベーターと階段でアプローチができ、4階部分の天高は3m以上。
分割の相談も可能ですが、3フロア一括でお借りいただける方を優先いたします。

入居テナント
以前はサウナ施設として使用されており、一部例外を除き業種制限はありません。業種や諸条件はご相談可能。
用途地域は商業地域となります。スタジオやショールーム、オフィス、シュミレーションゴルフ、飲食店等、この何にも染まっていない巨大な空間をどんな空間にできるのかわくわくする方、ぜひ一度内見されてみてはいかがでしょう。

募集区画DATE
物件名:第一大島ビル
所在地:東京都台東区上野3丁目
最寄駅:御徒町駅 徒歩2分
賃料:550万円
管理費:賃料に含む
面積:1,502㎡
階層可能範囲:2階から4階(分割相談可)
原状回復:有り
保証金:10か月
礼金:1ヶ月
償却:
条件:保証会社加入 初回賃料の1か月分、年間更新料あり
設備:EV
築年:1964年11月
保険:要加入
構造規模:鉄筋造一部軽量鉄骨造地下1階付6階建て
契約内容:定期借家契約10年(更新相談可)
備考:
情報掲載社:株式会社しんか
取引様態:仲介
最終確認日:2023年4月10日
No.TYO-23-15-1
お問い合わせ
「大島第一ビル」の最新の空室状況やの確認や内見ご希望の方は、下記スケルトンオフィス東京HPの物件記事よりお気軽にお問い合わせください。
物件探し・空間づくりサポートいたします
スケルトンオフィス東京では、「大島第一ビル」のほか天井が抜けた、コンクリ打ちっ放し、倉庫風物件などおしゃれでかっこいい物件を日々掲載、ご紹介しております。
自分たちのオフィスをDIYでスケルトン化したり、自分たちで現地に行って見て感じたものを記事にしています。スケルトン物件の魅力を発信したいという思いがあり、みなさんのスケルトンの空間づくりのことを全面サポートします。
「完全スケルトンから自分たちの空間を作りこみたい」「オフィスをスケルトン化したい」など物件探し、空間づくりのご相談ありましたら、お気軽にお問合せください。

スケルトンオフィス東京
事業内容
・スケルトンオフィス物件の仲介
・オフィス家具や植物の提供
・スケルトンオフィス化のお手伝い(条件交渉、空間作り、サブリース)
| Web |
https://skeleton-office.tokyo/
| Instagram |
https://www.instagram.com/skeleton.office.tokyo/
| Facebook |
https://www.facebook.com/skeleton.office.tokyo/
| LINE |
https://page.line.me/510mmzgk?openQrModal=true
| Twitter |
https://twitter.com/skeleton_office
| Youtube |
https://www.youtube.com/channel/UCKkgakWHsZxETS_yF5VOU6g
運営会社:株式会社しんか
提供サービス
・居抜きオフィス探し、居抜きオフィス退去
・シェアオフィス企画、運用・スペース運用
・WEB会議ツール提供、企業のデジタル化、オフィス移転コンサル
・いらなくなった家具を捨てない(https://eco-kagu.space/service/)
・起業支援サポート(https://startup-company.net/)
・高級家具の再利用(https://sinca.co.jp/rental-service/)









