【富士山麓】動物同伴型の1棟貸し古民家宿「ICHI 縁」、11月1日グランドオープン。1日1組限定、富士の絶景を望みながら家族みんなで圧倒的な非日常体験を
動物愛護の理念のもと、売上の一部を保護活動に寄付。最大定員8名・2世帯でご利用も可。1階に大きなワンルームの空間、2階に寝室&絶景浴室を配置したプライベート空間で、動物も人も癒される特別な1棟貸しの宿

富士山麓エリアで展開する宿泊ブランドICHI(代表:松野将至)は、「大切な家族や仲間みんなで、富士に集う」をコンセプトとした一棟貸しの動物同伴型宿泊施設「ICHI 縁 」を2025年11月1日(土)にグランドオープンいたします。
当施設は、世界遺産・富士山の麓(山梨県南都留郡富士河口湖町大石)に位置し、古民家ならではの趣とぬくもりに包まれた上質な宿で、最大8名様までご宿泊いただけます。犬や猫はもちろん、小さな仲間たち(屋内飼育をされている動物たち)もかけがえのない家族の一員としてお迎えし、人も動物も同じ時間を過ごせます。また動物愛護の理念のもと、売上の一部を保護活動を行う企業・団体に寄付いたします。
富士山の絶景を一望するロケーションで、ファミリーとなる大切なみなさまの特別な旅の思い出作りをサポートいたします。
▼動物同伴型宿泊施設「ICHI 縁 」公式サイト:https://ichi-fuji.jp/
■宿泊ブランド「ICHI 」のコンセプト
私たちは、現在、保護犬や保護猫を家族として迎えており、犬も猫もどんな命も家族の一員として迎え入れています。言葉は話せないけれど、幸せに生きたい気持ちが動物たちの目から伝わります。虐待を受けたり、捨てられたり、ペットショップで売れ残ったり、人の都合で命の扱い方を変える事があっていいのだろうかという問いから、このICHIブランドが動物愛護にもつながる事業として成長していくこと、また同じ想いをもった保護活動をする方々のサポートにつなげられる、そんなハブとなるようなブランドでありたいと考えています。
※宿泊事業で得られた売上の一部を保護活動を行う企業、団体様に向けて寄付を行ってまいります。
生きるもの全てが人と同じように大切にされる権利がある、そして日々の生活でも自然に彼らを尊重し大切にしていきたいという想いから、ICHIブランドの宿泊施設においては、動物を家族として迎えている方々を中心に利用していただきたく、動物同伴型の宿泊施設として開業させることにしました。
「大切な家族や仲間みんなで、富士に集う。」
富士山の麓で展開していく宿泊ブランド ICHIのコンセプトです。私たちが大切にしているのは、「旅に、動物たちを置き去りにしない」こと。ここでは、犬や猫はもちろん、日々を共に過ごす小さな仲間たちも、かけがえのない家族の一員としてお迎えします。家族の一員として迎えた動物たちは「ペット」ではなく、「パートナー」や「家族」と呼びたい存在。人も動物も区別なく、同じ時間を、同じ景色を、同じ思い出に。
ICHIは、富士山に抱かれた自然の中で、人と動物が一緒にひとつになる場所を目指しています。
■「ICHI」のロゴに懸ける想い

富士山に魅せられて県外から移住してきた私たち。家の家紋となる漢数字「一」に着目し、富士山の麓でこの宿泊事業が発展していけるよう漢数字の「一」と富士山を掛け合わせてイメージして作ったものがICHIのロゴになっています。どこか犬や猫の口元にも見えてくるこの形やブランドカラーも私たちの家族である保護犬の灰色、保護猫の白色をもとに設定した背景があります。家族が一つとなって始めるこの事業に対して、「一から始める」、「初心忘るべからず」といった「一」という言葉の思いも込めながらICHIブランドをスタートさせます。
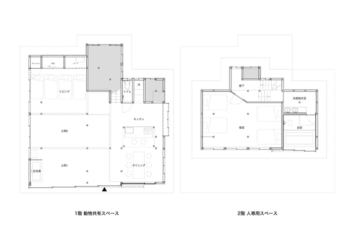
■客室:人と動物それぞれが安心できる空間設計
ICHI 縁 は、富士山のふもとに佇む古民家を改装した2階建ての宿です。懐かしさと新しさが調和した空間で、家族みんなが心からくつろげます。また、2階を人専用にすることで、宿泊する方々にも様々なご意向がある事を考えた配置にしています。人と動物、それぞれにとって快適な環境を、フロアごとに丁寧に整えました。


•1階
犬や猫、小さな仲間たちと一緒に過ごせる自由な空間。
建物の内外を連続させた広い土間が、寝床や居間のすぐ隣まで続いていることで、広場を駆け回るワンちゃんたちも、たれ壁を飛び回る猫ちゃんたちも、土間で一緒に遊んでいる人たちやダイニングでご飯を食べたり本を読んだりしている人たちも、家族のみんなが常に身近な距離で過ごすことができます。




•2階
静かな寝室と特別な浴室を設け、人が安心して休息できる専用フロア。
寝室については、1階の寝床はワンルームの中でみんなと過ごしながら寝たいとき、2階の寝室はよりプライベートな環境で落ち着いて過ごしたいとき、といったように、気分に合わせて過ごす場所を変えることもできます。また二世帯や友達同士で宿泊される際には、グループごとに分かれて使うことも想定して計画しています。
1階からも広場や室内から富士山を見ることはできますが、2階の窓からは障害物がほとんどないため、富士山を目の前にとても大きく感じとることができます。




富士山を望む、特別な湯浴み。
浴室は富士山の眺望を最優先に、2階に設置しました。浴室の窓はフルオープンにすることができ、遮るもののない富士山を独り占めにしながらゆっくりお風呂に入ることができる半露天風呂です。浴槽はゆったり浸れる広さを誇り、シックで落ち着いたダークトーンの空間。人が心から解き放たれる、特別な時間をお届けします。



■設備:広々とした土間とプライベートドッグラン、キャットウォーク
●広々とした土間とプライベートドッグラン
玄関窓を全開放させられる広々とした空間。春には桜が咲き誇り、富士山を望みながら愛犬が思いきり駆けまわれます。
家族の安全を守るために広場の外周部に設けたフェンスは、必要な高さの約半分を掘り下げて緑と混ぜていくことで広場内の圧迫感を軽減し、隣接する田畑や富士山や河口湖をはじめとした周辺の町並みとも緩やかに繋がる広場を目指しました。


●キャットウォーク
館内には猫や小さな仲間たちのためのキャットウォークを設置。愛猫たちがのびのびと遊び、くつろげる居場所を確保しました。




犬も、猫も、小さな仲間も。そして人も。
それぞれが安心して過ごせるよう、細部まで注意をはらいながら設計しています。
■食事:山梨名店と提携した夕食・朝食
夕食:「みんなで囲む、旅のごちそう。」
山梨の名店「紅梅や」×ICHIの特別すき焼き(オプション)をご用意いたします。

山梨を代表する名店 「紅梅や」 と提携し、ケータリングスタイルにてお届けいたします。
紅梅やは、甲府と河口湖に店舗を構え、長年にわたり「本当に美味しいすき焼き」を提供し続ける名店です。その人気の理由は、山梨が誇るブランド牛 「甲州牛」 を中心に、厳選された旬の野菜と秘伝の割下。一度口にすれば、上質な旨みととろける柔らかさに、きっと心まで満たされるはずです。
食材と必要な機材を当日、宿にお届けしますので、あとはお客様のお好きなタイミングで、大切な家族や仲間と一緒に “すき焼きを囲む時間” をお楽しみください。
朝食:「朝は、あなたのペースで。」
河口湖畔唯一のオーベルジュとなる「オーベルジュマーメイド」× ICHIのオリジナル朝食BOX(オプション)をお届けします。

湖畔に佇むICHIの朝は、富士山を望む絶景とともに始まります。
地元の食材を活かし、オーベルジュマーメイドのシェフが腕によりをかけた創作フレンチのエッセンスを取り入れ、自家製スモークチキンのパニーニをはじめとしたオリジナル朝食を提供いたします。
チェックインの段階で、施設内の冷蔵庫に朝食BOXを事前にご用意しております。
食材の持ち込み:自由な時間と自由な食事
お好きな食材を自由に持ち込んでお楽しみいただけるようアイランドキッチンの設備もございます。小さなお子様連れの方やアレルギーのある方も安心してご滞在いただけます。



■近隣施設
富士山の絶景を一望できる「大石公園」は、施設から徒歩1分というロケーションになります。ご滞在中いつでも気軽に愛犬のお散歩にも出かけられます。
また、施設の目の前には河口湖を代表する商業施設「富士大石ハナテラス」があり、旅の思い出としてお買い物もお楽しみいただけます。

■施設概要
名称: ICHI 縁
所在地: 山梨県南都留郡富士河口湖町大石1473-1
アクセス: 中央自動車道河口湖ICから約20分、富士急河口湖駅から車で約15分
客室数: 1棟(貸切) ※最大定員:8名
グランドオープン: 2025年11月1日(土)
※予約サイトからご予約可能です。
最低価格: 16,000円~(1人当たり・税別)

■問合せ先
問合せ用メール:info@ichi-fuji.jp
問合せ用フォーム:https://ichi-fuji.jp/




























