【デザイナーズ】代々木公園駅から徒歩3分、屋上付きおしゃれ物件に空室が出ました!【事務所、店舗物件】
成長企業のオフィス探しを手がける株式会社しんか(東京都渋谷区 | 代表取締役 久田 友彦)が運営するスケルトン物件に特化した物件ポータルサイト「SKELETON OFFICE TOKYO(スケルトンオフィス東京)」が新着記事を公開いたしました。

スケルトンオフィス東京では、天井が高い、コンクリート打ちっぱなし、リノベーション、倉庫風物件など”かっこよくておしゃれな物件”を中心にセレクトして物件を掲載しています。
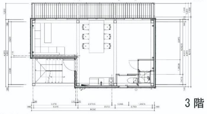
「MAKITAKI」の募集を開始します。代々木公園駅徒歩3分、38.01㎡、賃料36.3万円の店舗、オフィス物件です。

▶︎Local history
千代田線代々木公園駅から徒歩3分。奥渋・富ヶ谷周辺は話題のカフェやレストランが立ち、渋谷区屈指の注目エリアだ。新宿駅までは小田急線代々木八幡駅から3駅と近く、渋谷駅までも歩けば20分の立地。

▶︎Space
代々木公園そばの屋上付きデザイナーズ物件。3階のお部屋はコンパクトな空間ながら、大きな窓から入ってくる日の光で開放感があり気持ち良い。天気が良い日はバルコニーに椅子を置いてコーヒータイムも楽しめそう。屋上を利用して撮影もできそう。


▶︎writers comment
床も天井も工事なしでそのまま使えるので、内装工事費用がお安く済みますね。そのままの状態で超いい感じの空間です。富ヶ谷はおいしいチョコレート屋さんや洒落た中華屋もあります。そんな街にぜひこの素敵なお部屋を構えませんか。

DATA
物件名:MAKITAKI
所在地:渋谷区代々木5-67-8
最寄駅:千代田線 代々木公園駅 徒歩3分、小田急線 代々木八幡駅 徒歩4分
賃料:36.3万
管理費:なし
面積:38.01㎡
階層可能範囲:3階、屋上付き
原状回復:要確認
敷金:2ヶ月 店舗の場合敷金3ヶ月(退去時1ヶ月償却)
礼金:1ヶ月
償却:
条件:
設備:シャワールーム、給湯、都市ガス、エアコン、インターネット対応
築年:2018年
保険:要加入
構造規模:鉄骨造3階建て
契約内容:
備考:
情報掲載社:株式会社しんか
取引様態:仲介
最終確認日:
No.TYO-23-10-76
スケルトンオフィス東京
事業内容
・スケルトンオフィス物件の仲介
・オフィス家具や植物の提供
・スケルトンオフィス化のお手伝い(条件交渉、空間作り、サブリース)
| Web |
https://skeleton-office.tokyo/
| Instagram |
https://www.instagram.com/skeleton.office.tokyo/
| Facebook |
https://www.facebook.com/skeleton.office.tokyo/
| LINE |
https://page.line.me/510mmzgk?openQrModal=true
| Twitter |
https://twitter.com/skeleton_office
| Youtube |
https://www.youtube.com/channel/UCKkgakWHsZxETS_yF5VOU6g
運営会社:株式会社しんか
提供サービス
・居抜きオフィス探し、居抜きオフィス退去
・シェアオフィス企画、運用・スペース運用
・WEB会議ツール提供、企業のデジタル化、オフィス移転コンサル
・いらなくなった家具を捨てない(https://eco-kagu.space/service/)
・起業支援サポート(https://startup-company.net/)
・高級家具の再利用(https://sinca.co.jp/rental-service/)
スケルトンオフィス化したい!という方もご相談ください
自分たちのオフィスも普通のオフィス仕様だった物件をDIYしてスケルトンオフィス化をしました。
スケルトンオフィス化したいという場合もご相談ください。







