[プレスリリース]興福寺東金堂院北面回廊の発掘調査(平城第 649 次調査)
記者発表資料をPDFでご覧いただけます
概 要
東金堂院北面回廊の規模と構造を確認しました。その結果、東金堂院の東西規模が100m以上となり、従来の復元案より大きくなることが判明しました。東金堂院の構造や興福寺の中での東金堂院の性格を考えるうえで重要な成果となりました。
1.調査の経緯と目的
興福寺の沿革
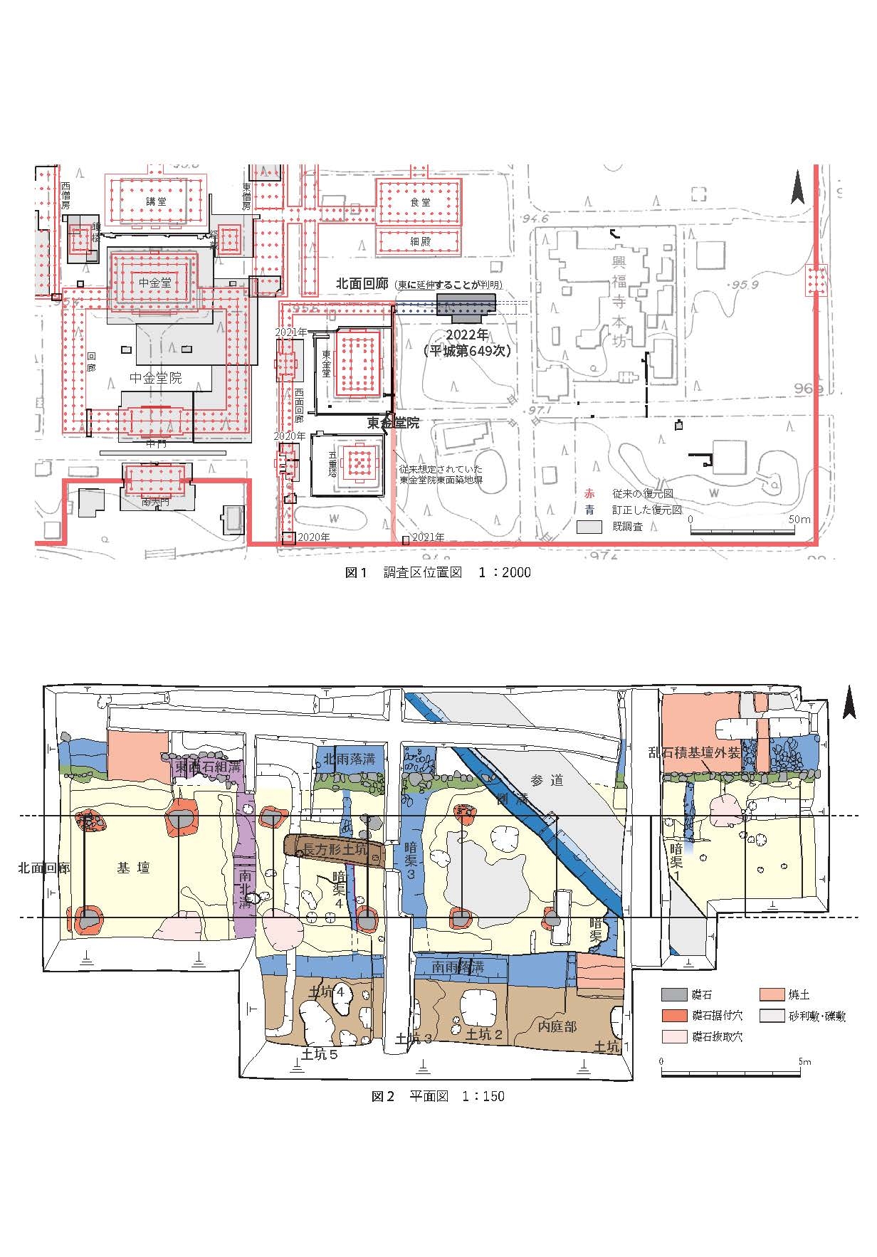
興福寺は、藤原不比等が奈良時代はじめ(8世紀前半)に、平城京左京三条七坊の地に建立した藤原氏の氏寺であり、南都七大寺の一つです。奈良時代から中世を通じて、中金堂院を中心とする大伽藍を誇りました。たび重なる火災に遭っても、主要な堂塔は創建期の位置と規模を踏襲して再建が繰り返されてきたことが、これまでの発掘調査等でわかってきました。現在、興福寺では『興福寺境内整備構想』(1998 年)に基づき、寺観の復元・整備を進めています。これにともない、奈良文化財研究所では1998 年以来、中金堂院や南大門などの発掘調査を継続しておこなっています。直近の2年間は東金堂院の発掘調査に取り組んでおり、今回の調査もその一環です(図1)。
東金堂院は中金堂院の東に位置し、東金堂と五重塔を中心とする区画です。周囲を単廊と築地塀で取り囲んでいたとみられ、北面と西面が礎石建ちの単廊、東面と南面が築地塀と考えられています。奈良時代の興福寺境内の様子を伝える平安時代末頃に成立した『興福寺流記』によると、東金堂は神亀3年(726)、五重塔は天平2年(730)の創建で、東金堂院の門・回廊・築地塀も同時期に創建されたとみられます。創建以後、東金堂と五重塔は5回の火災に遭い、現存する東金堂は応永22 年(1415)、五重塔は応永 33 年(1426)再建されたものです。
これまでの調査成果
東金堂院の回廊と門は現存していませんが、防災工事にともなう発掘調査(1975・1976 年、興福寺)では、東金堂の北側で北面回廊の基壇や礎石を検出しており、一部の礎石は現在も地表に露出しています。この調査の結果、北面回廊は礎石建ちの単廊で、柱間寸法は桁行約 3.4m(11.5 尺)、梁行約 3.5m(12 尺)、基壇の幅は約 6.4m(21.5 尺)と判明しました。また、北面回廊の東端と考えられていた地点より東で形態などが異なる礎石を検出したことから、ある時期に北面回廊が東に向かって延長した可能性が指摘されました。この回廊も礎石建ちの単廊ですが、柱間寸法が不揃いであるとされました。
近年おこなった平城第 625・640 次調査(2020・2021 年度)では、西面回廊、五重塔と東金堂それぞれの西正面にひらく門、基壇外装や雨落溝などを確認しました。これらの調査の結果、西面回廊は礎石建ちの単廊で、柱間寸法は門の近くで桁行約 3.1m(10.5 尺)、梁行約 3.5m(12 尺)、基壇の幅は約 6.2m(21 尺)であったことが判明しました。また、五重塔の南側では東金堂院の南面と興福寺全体の南面を兼ねる築地塀を検出し、その基部が遺存していることがわかりました。
調査の目的と概要
従来、創建時の東金堂院の規模は南北約110m、東西約 51mと南北に長い区画で、東金堂と五重塔を中心とする区画と考えられてきました。しかし、近年の発掘調査の成果や文献資料などの再検討をふまえて、その規模を南北約 110m、東西約 130mと東西に長い区画と想定する見解が出されています。
そこで、北面回廊の規模と構造をあきらかにし、東金堂院の規模を把握することを目的として、今回の発掘調査を実施することとしました。調査区は、東金堂の北東約 43mの位置に南北 15m、東西 28mのうち樹木等の支障物を避けて設定しました(331 ㎡)。調査面積 331 ㎡のうち、12 ㎡が既調査区(1976 年、興福寺)と重複しています。調査は 2022 年7月6日(水)から開始し、現在も継続中です。
2.主な検出遺構
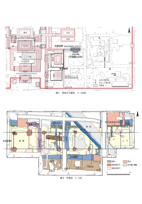
東金堂院北面回廊(図2)
北面回廊の一部(東西約28m)を検出しました。検出したのは、礎石やその据付穴・抜取穴、基壇及び基壇外装や雨落溝などです。
礎石と柱配置
12 か所で礎石やその据付穴・抜取穴などを検出し、桁行7間分を確認しました。このうち、7か所には礎石が残存していました。残りの5か所の礎石は抜き取られていましたが、2か所で据付穴と根石を検出し、3か所で抜取穴を検出しました。7基の礎石のうち、4基は既往の調査で確認していたもので、今回の調査で新たに検出した礎石は3基です。礎石の上面の標高は 95.5m前後です。北面回廊は梁行1間の単廊で、柱間寸法は桁行が約 3.4m(11.5 尺)等間で、梁行は約 3.5m(12 尺)となります。礎石上面の標高、回廊の規模と構造は、既往の調査で判明している北面回廊の成果と整合します。
礎石は直径ないし一辺が 0.5~0.8mの大きさで、厚みは 0.3~0.5mです。石材は安山岩と花崗岩で、柱座をつくらない自然石が用いられています。一部の礎石には柱の当たり痕と被熱痕跡があり、直径約 0.36m(1.2 尺)の円柱が立った状態で被災したことがわかります。また、一部の礎石据付穴は、ほぼ同じ位置に重複するものがあること、瓦などの遺物を含むこと、根石に凝灰岩が使用されていることなどから、創建当初の位置をほぼ踏襲しながら据え直された可能性があります。



