<京都・御所>都心を離れ、歴史の中心で働く。 イノベーションを生む小さなチームのためのワークプレイス登場
Withコロナ時代における新しい働き方 ✕ 歴史ある町並みの活用
株式会社リヴ(本社:京都府向日市寺戸町七ノ坪141、代表取締役:波夛野賢)は令和2年6月20日(土)、京都・御所から徒歩1分の立地で歴史ある環境の中で働くことのできるワークプレイス『MACHI WORK 御所西』を運用型のテナントビルとして販売を開始いたします。
Withコロナ時代で働き方が変わる中、都心にこだわらないサテライトオフィスやオフィス縮小を考える企業の入居を想定。京都の町家や店舗リノベーションを多く手掛ける株式会社リヴと、京丹後・与謝野で創業し70年以上の歴史を持つセレクト家具ショップARIAが内装設計・デザインをプロデュースします。

<企画の背景>
株式会社リヴは京都・乙訓地域に根ざし、注文住宅から始まりリノベーションや不動産などを通して、京都を元気にする“まちづくり”を進めてまいりました。
新型コロナウイルスの感染拡大を受けて働き方が都心集中型から地域分散型に変わりつつある中、これから重要視されるのは場所の利便性や人口集中地ではなく
「集中できる環境」「居心地」「心の平穏」であり、多様化するスタイルに対応できるワークプレイスが求められています。
『MACHI WORK 御所西』はWithコロナ時代に新たな働き方を提案するワークプレイスです。
歴史ある町並みの中古物件をリノベーションし、新しいコンセプトを付加価値として提供することにより“まち”の新たな価値を創造するとともに、オーナー様の資産運用の形として成立させ、歴史ある建物をできる限り活用しながら地域を活性化することができると考えています。




<『MACHI WORK 御所西』について>
『ローカルな “まち” で働く』 を提案するコンセプト型オフィスビスです。
その “まち” の文化や歴史に触れながら、働く人の生活スタイル・働き方に寄り添ったワークプレイスを提供します。
京都の町家や店舗リノベーションを多く手掛ける株式会社リヴと、セレクト家具ショップARIAがコンセプトデザインを担当し、入居する企業の内装設計・デザインプロデュースを請け負うことも可能です。
東京・大阪・京都など都市部に本社があり多くの社員の働き方改革のため苦心されている企業や、通勤やビルに囲まれていない心休まる環境で生産性を高めたい企業など、新しい働き方を求める企業の小さな部門・チームに適しています。
御所西の緑を眺めながら、自由な発想を育む環境がそこにあります。

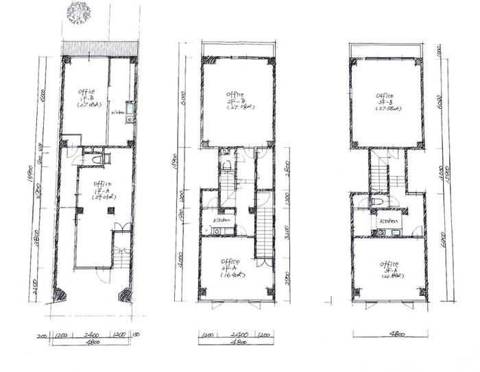
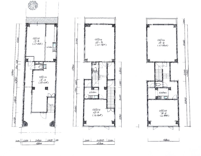
<『MACHI WORK 御所西』物件概要>
素焼きのレンガの外装が歴史ある京都の町に馴染んでおり、周辺のランドマークのような存在です。地下鉄烏丸線丸太町駅まで徒歩1分。京都駅まで地下鉄で9分。道路を挟んで京都・御所目の前の立地です。


3階建ての鉄骨造。各階に共有の給湯スペースがあり、各スペースは好きなテイストで改装できます(1階2カ所、2階・3階共有スペース改装済み)

<『MACHI WORK 御所西』個別内覧会の実施>
2020年6月20日(土)よりテナント募集開始と同時に個別内覧会を開催いたします。ご予約については特設サイトとお電話にて受け付けております。

お問い合わせ
●『MACHI WORK 御所西』物件のお問い合わせ
株式会社リヴ
担当:不動産担当 河副
TEL:0120-811-157
特設サイト:https://pro.form-mailer.jp/lp/b9102748198922
●各種ホームページURL
リヴ・コーポレートサイト :https://liv-r.co.jp/
リヴ・リノベーションサイト:https://liv-renovation.jp/
ARIAサイト :https://aria-kyoto.jp/
●ニュースリリースについてのお問い合わせ
株式会社リヴ
担当:広報 伊藤義晃
TEL:080-6115-9505 / 075-924-0211
MAIL:y-ito@liv-r.co.jp











